Javascript is vital for the advanced features in this website such as Property Search. Please enable or upgrade your browser

52 Beechgrove Gardens

Belfast, County Antrim, BT6 0NP

Offers Over £250,000

52 Beechgrove Gardens

Belfast, County Antrim, BT6 0NP

Offers Over £250,000
Status Agreed
Offers Over £250,000
Style Semi-detached
Bedrooms 3
Heating GFCH
EPC Rating C76/C74 - Download
Stamp Duty £ / £*
Calculate Stamp Duty
*Higher amount applies when purchasing as buy to let
or as an additional property
Status Agreed
Offers Over £250,000
Style Semi-detached
Bedrooms 3
Heating GFCH
EPC Rating C76/C74 - Download
Stamp Duty £ / £*
*Higher amount applies when purchasing as buy to let
or as an additional property

Key Features

Attractive Red Brick Semi-Detached Family Home
Superb Elevated Position With Views Over Belfast City Centre from First Floor
Three Generous Bedrooms
Spacious Living Room With Remote Controlled Gas Stove
Modern Fully Fitted Kitchen open to Dining Area
Bathroom In White Suite
Gas Fired Central Heating
PVC Double Glazing
Detached Garage
Tiered Garden With Paved & Raised Decked Sitting Area
Concrete Driveway parking
Popular And Convenient Residential Location Close To All Local Amenities, Schooling, Transport Routes, Belfast City Centre And Forestside Shopping Centre
Viewing by Private Appointment

Description

The Beechgrove area has consistently proved one of the most sought after locations ideally situated off the Upper Knockbreda Road and close to all local amenities within the area including excellent schooling, transport routes and Forestside Shopping Centre, with Belfast city centre a short drive away.

This particular property benefits from its elevated position and has well presented accommodation providing a three bedroom layout, living room, open plan kitchen /dining and bathroom in white suite. Externally the property is positioned on an elevated site with pleasant views over Belfast with gardens to the rear and detached garage

Likely to be of interest to the young professional, first time buyer or family in today’s market viewing of this excellent semi-detached home is by private appointment through our Lisburn Road office on 028 9066 8888.

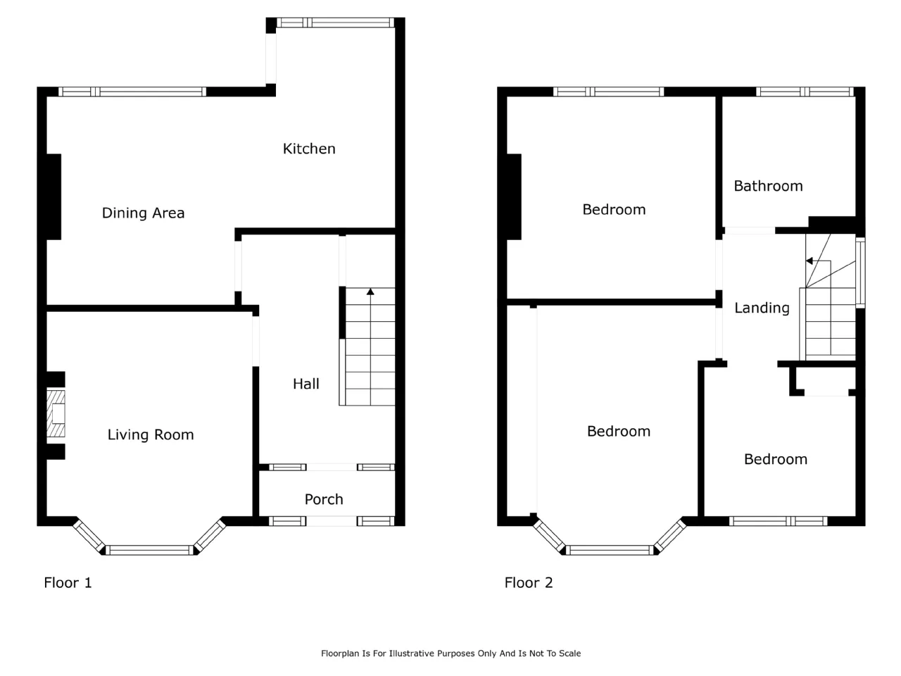
Rooms

COMPOSITE FRONT DOOR TO:
ENTRANCE PORCH: Tiled floor, uPVC double glazed front door to
RECEPTION HALL: Solid wood parquet floor, understairs storage cupboard
LIVING ROOM: 40'5" x 36'10" (4.45m x 3.9m) Solid wood parquet floor, remote controlled gas stove with slate hearth and solid wood beam
KITCHEN/DINING: 62'1" x 36'0" (7.85m x 5.5m) Tiled floor, range of high and low level units, eye-level electric oven, 4 ring ceramic hob, stainless steel extractor fan, integrated dishwasher, stainless steel sink unit, plumbed for washing machine, part tiled walls, uPVC double glazed door leading outside
FIRST FLOOR LANDING: Access to partly floored roofspace
BEDROOM 1: 40'5" x 28'7" (4.5m x 4.27m) Laminate wood floor, mirror slide robes
BEDROOM 2: 37'0" x 35'11" (4.1m x 5.49m)
BEDROOM 3: 37'11" x 25'4" (4.75m x 3.96m)
BATHROOM: Tiled floor, bath with tiled surround, pedestal wash hand basin with vanity unit, fully tiled shower cubicle with rainhead shower
OUTSIDE: Concrete driveway to the side of the house. Front garden in lawn. Enclosed paved rear garden with steps to decked sitting area
DETACHED GARAGE: 58'3" x 29'3" (7.1m x 4.78m) Up and over door, power and light, plumbed for washing machine
Contact Robin Lyons South Belfast 028 90668888 Email Enquiry

Location

Show Map
What's Near by?

Click below to see on map

Mortgage Calculator

Monthly Repayments Need Mortgage Advice?

Disclaimer: The following calculations act as a guide only, and are based on a typical repayment mortgage model. Financial decisions should not be made based on these calculations and accuracy is not guaranteed. Always seek professional advice before making any financial decisions.

Request More Information

Requesting Info about...
52 Beechgrove Gardens, Belfast, County Antrim, BT6 0NP 52 Beechgrove Gardens, Belfast, County Antrim, BT6 0NP

By registering your interest, you acknowledge our Privacy Policy and Terms & Conditions

Value My Property

Do you have a property to sell?
If you have a property to sell we can arrange for one of our experienced valuers to provide you with a no-obligation valuation.

Please complete the form opposite and a member of our team will get in touch to discuss your requirements.

Financial Services Enquiry

We can help with mortgages and insurance
John Minnis work with independent financial advisers that offer private mortgage advice and insurance options.

If you would like more information about what we can offer please complete the form opposite and a member of our team will get in touch to discuss your requirements.

Arrange a Viewing

Arrange a viewing for...
52 Beechgrove Gardens, Belfast, County Antrim, BT6 0NP 52 Beechgrove Gardens, Belfast, County Antrim, BT6 0NP

Make an Offer

Make an Offer for...
52 Beechgrove Gardens, Belfast, County Antrim, BT6 0NP LBR251369
Loading...