Javascript is vital for the advanced features in this website such as Property Search. Please enable or upgrade your browser

114 Upper Lisburn Road

Belfast, County Antrim, BT10 0BD

Offers Over £1,250,000

114 Upper Lisburn Road

Belfast, County Antrim, BT10 0BD

Offers Over £1,250,000
Status For Sale
Offers Over £1,250,000
EPC Rating 0/0
Stamp Duty £ / £*
Calculate Stamp Duty
*Higher amount applies when purchasing as buy to let
or as an additional property
Status For Sale
Offers Over £1,250,000
EPC Rating 0/0 - Download
Stamp Duty £ / £*
*Higher amount applies when purchasing as buy to let
or as an additional property

Description

114 Upper Lisburn Road, Belfast – a unique opportunity to acquire a “Ready to Go Site” in a sought after location in South Belfast with close links to the Lisburn Road.

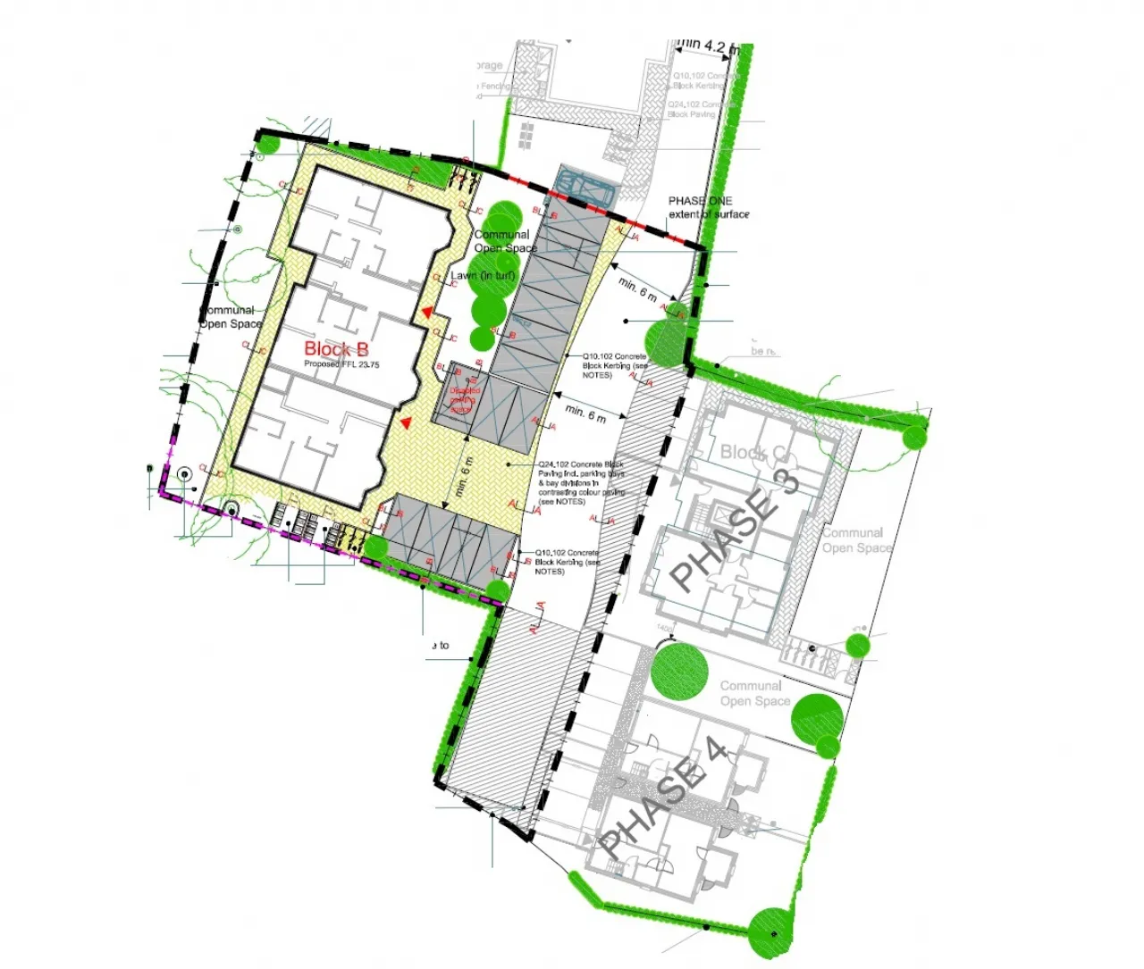
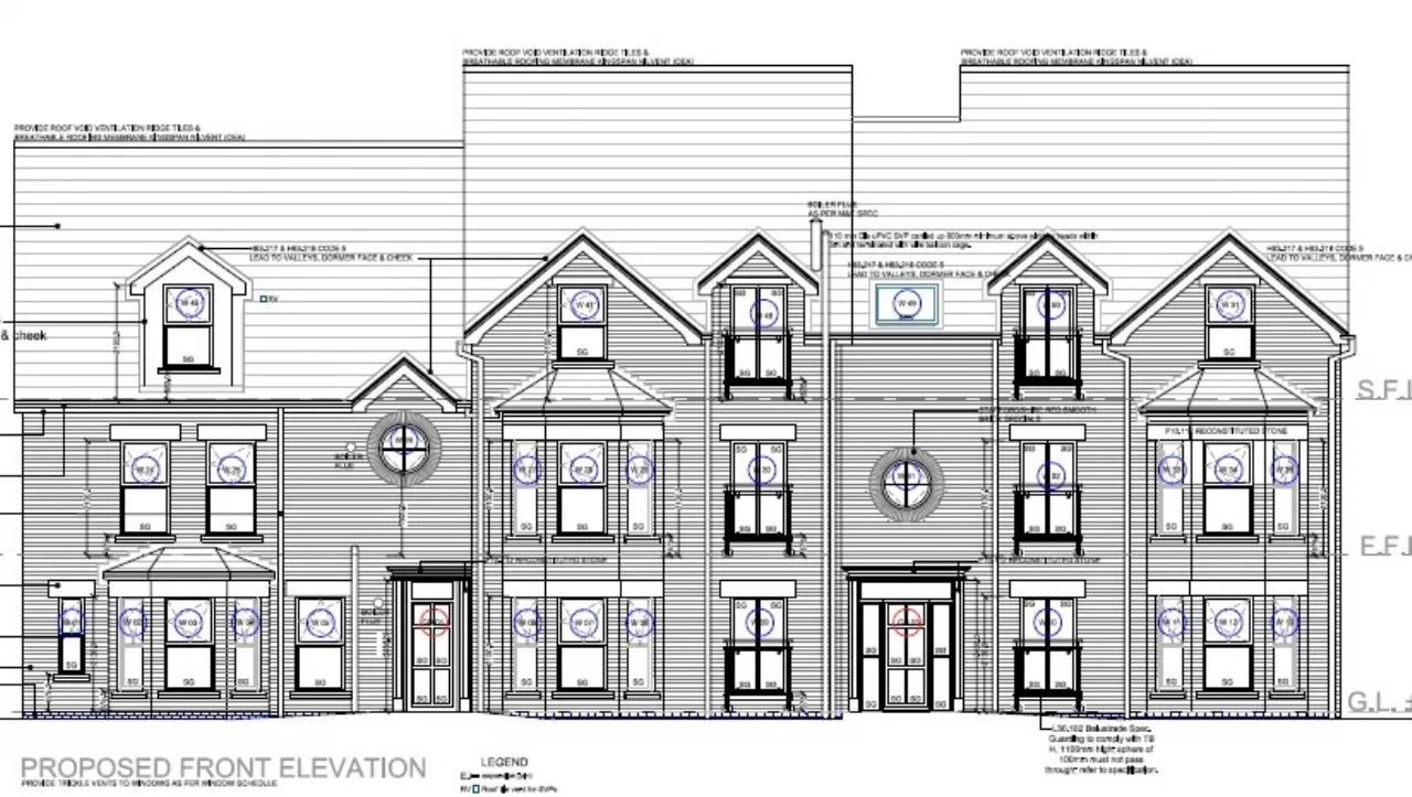
The site itself extends to approximately 0.4 Acres and benefits from close links to the Lisburn Road and Belfast City Centre. The site benefits from full planning permission under planning reference LA04/2017/0063/F granted on the 12th of April 2017. The current planning permission is approved for two apartment blocks comprising 9 and 6 apartments and two 3 bedroom detached homes.

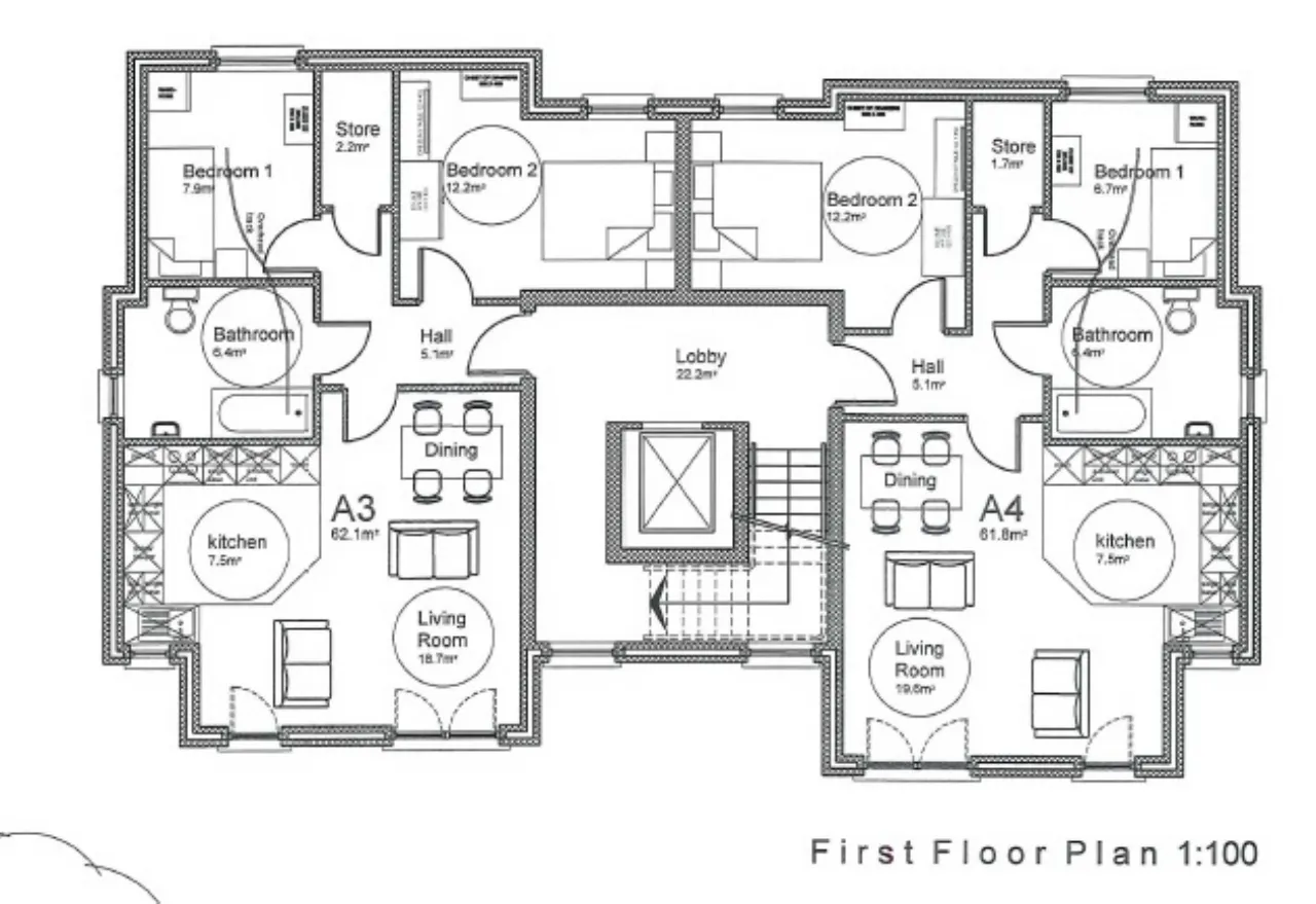
“Apartment Block B” comprises eight 2 bedroom apartments and one 1 bedroom apartment ranging from circa 600 to 800 square feet over three storeys. “Apartment Block C” comprises six 2 bedroom apartments ranging from 664 square feet to 668 square feet. The two 3 bedroom detached homes offer circa 1,050 square feet of living space. All services including power, water, foul and storm are available on site.

The subject lands and house types in the proposed development present a unique opportunity to provide sought after new homes in an ever popular location. The concept apartment blocks and detached houses designed for the lands at 114 Upper Lisburn Road are ideal for this location, providing superb layouts and spacious living throughout. Newly built, high quality, apartments and houses would be in high demand in this location, given its close links to South Belfast and the City Centre.
Contact Thomas O'Doherty South Belfast +44 28 90668888 Email Enquiry

Location

Show Map
What's Near by?

Click below to see on map

Mortgage Calculator

Monthly Repayments Need Mortgage Advice?

Disclaimer: The following calculations act as a guide only, and are based on a typical repayment mortgage model. Financial decisions should not be made based on these calculations and accuracy is not guaranteed. Always seek professional advice before making any financial decisions.

Request More Information

Requesting Info about...
114 Upper Lisburn Road, Belfast, County Antrim, BT10 0BD 114 Upper Lisburn Road, Belfast, County Antrim, BT10 0BD

By registering your interest, you acknowledge our Privacy Policy and Terms & Conditions

Value My Property

Do you have a property to sell?
If you have a property to sell we can arrange for one of our experienced valuers to provide you with a no-obligation valuation.

Please complete the form opposite and a member of our team will get in touch to discuss your requirements.

Financial Services Enquiry

We can help with mortgages and insurance
John Minnis work with independent financial advisers that offer private mortgage advice and insurance options.

If you would like more information about what we can offer please complete the form opposite and a member of our team will get in touch to discuss your requirements.

Arrange a Viewing

Arrange a viewing for...
114 Upper Lisburn Road, Belfast, County Antrim, BT10 0BD 114 Upper Lisburn Road, Belfast, County Antrim, BT10 0BD

Make an Offer

Make an Offer for...
114 Upper Lisburn Road, Belfast, County Antrim, BT10 0BD LBR260266
Loading...