Javascript is vital for the advanced features in this website such as Property Search. Please enable or upgrade your browser

431-441, Newtownards Road

Belfast, County Antrim, BT4 1PG

Asking Price £350,000

431-441, Newtownards Road

Belfast, County Antrim, BT4 1PG

Asking Price £350,000
Status For Sale
Asking Price £350,000
EPC Rating 0/0
Stamp Duty £ / £*
Calculate Stamp Duty
*Higher amount applies when purchasing as buy to let
or as an additional property
Status For Sale
Asking Price £350,000
EPC Rating 0/0 - Download
Stamp Duty £ / £*
*Higher amount applies when purchasing as buy to let
or as an additional property

Key Features

Excellent Investment Opportunity
Full Planning Permission For 7 No. Apartments

Description

Interested in this property? Sign up for MY Simon Brien to arrange your viewing, see current offers or make your own offer. Register now at SimonBrien.com.

LOCATION
The property occupies a prominent position at the junction of the Newtownards Road, Holywood Road and Upper Newtownards Road in East Belfast in close proximity to the City Centre.

Former Ulster Bank Building, 431-441 Newtownards Road, Belfast

An exceptional development opportunity with full planning permission for a contemporary 7-apartment residential scheme in one of Belfast’s most desirable and rapidly evolving urban locations.

This prominent building occupies a highly visible site on Newtownards Road, positioned within an exciting and vibrant neighbourhood that has seen significant recent investment in new bars, cafés, restaurants, and lifestyle amenities. The area’s growing popularity among professionals, investors and owner-occupiers alike makes this a strategically attractive proposition for both developers and forward-thinking buyers.

Key Highlights

Full Planning Permission Granted for 7 High-Quality Apartments – a mix of well-proportioned 1 & 2-bed units designed for modern urban living.

Excellent Location – within a highly sought-after and up-and-coming part of Belfast with strong rental and sales demand.

Strong Lifestyle Appeal – close to an expanding array of independent bars, eateries and entertainment venues, enhancing the desirability for city living.

Transport & Connectivity – superb access to public transport links and main arterial routes, offering easy connections to the city centre and beyond.

Investment Potential – excellent prospects for rental income or sales exit.

Development Opportunity

This property represents a rare chance to deliver quality residential accommodation in a neighbourhood where demand continues to outstrip supply. The approved scheme delivers a contemporary living offer, aligned with current market expectations and buyer preferences.

Whether pursued as a build-to-sell or build-to-let project, the planning permission in place significantly de-risks the development process and provides a clear route to delivery.

DESCRIPTION
The subject property is a converted three storey bank building which was refurbished c.1998 with a more recent two storey addition adjacent to the original building.

Externally the property is finished with granite block walls, part pitched tile/bitumen felt roof and uPVC double glazed windows.

Internally the premises is finished to include plastered/painted walls and carpet floor covering, with suspended ceilings throughout the majority of the property with recessed fluorescent strip lighting. The accommodation is arranged in a cellular fashion with the original banking hall on the ground floor providing a large open plan reception/office.

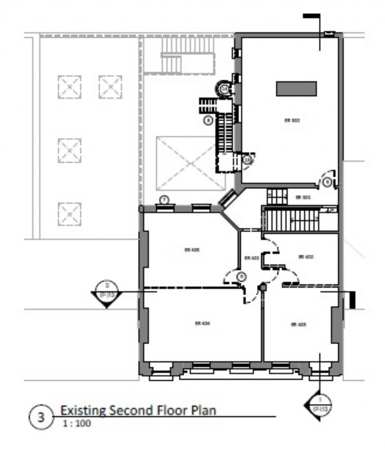
PROPOSED DEVELOPMENT
Apartment 1 - 1Bed 409 Sqft
Apartment 2 - 1Bed 528 Sqft
Apartment 3 - 2Bed 549 Sqft
Apartment 4 - 1Bed 409 Sqft
Apartment 5 - 1Bed 377 Sqft
Apartment 6 - 1Bed 388 Sqft
Apartment 7 - 2Bed 980 Sqft

CURRENT ACCOMMODATION
The property provides the following approximate areas: Ground floor: 2162 sq ft (20 I sq m)
First floor: I I 06 sq ft ( I 03 sq m)
Second floor: 818 sq ft (76 sq m)

Total: 4086 sq ft (380 sq m)

Please note that the property has a site area of approximately 3,285 sq ft (305 sq m).
Contact Samuel Dickey East Belfast +44 28 90595555 Email Enquiry

Location

Show Map
What's Near by?

Click below to see on map

Mortgage Calculator

Monthly Repayments Need Mortgage Advice?

Disclaimer: The following calculations act as a guide only, and are based on a typical repayment mortgage model. Financial decisions should not be made based on these calculations and accuracy is not guaranteed. Always seek professional advice before making any financial decisions.

Request More Information

Requesting Info about...
431-441, Newtownards Road, Belfast, County Antrim, BT4 1PG 431-441, Newtownards Road, Belfast, County Antrim, BT4 1PG

By registering your interest, you acknowledge our Privacy Policy and Terms & Conditions

Value My Property

Do you have a property to sell?
If you have a property to sell we can arrange for one of our experienced valuers to provide you with a no-obligation valuation.

Please complete the form opposite and a member of our team will get in touch to discuss your requirements.

Financial Services Enquiry

We can help with mortgages and insurance
John Minnis work with independent financial advisers that offer private mortgage advice and insurance options.

If you would like more information about what we can offer please complete the form opposite and a member of our team will get in touch to discuss your requirements.

Arrange a Viewing

Arrange a viewing for...
431-441, Newtownards Road, Belfast, County Antrim, BT4 1PG 431-441, Newtownards Road, Belfast, County Antrim, BT4 1PG

Make an Offer

Make an Offer for...
431-441, Newtownards Road, Belfast, County Antrim, BT4 1PG HLW260067
Loading...