Javascript is vital for the advanced features in this website such as Property Search. Please enable or upgrade your browser

98 Bush Manor

Antrim, County Antrim, BT41 2WH

Asking Price £205,000

98 Bush Manor

Antrim, County Antrim, BT41 2WH

Asking Price £205,000
Status Agreed
Asking Price £205,000
Style Semi-detached
Bedrooms 3
Reception 1
EPC Rating B85/B85 - Download
Stamp Duty £ / £*
Calculate Stamp Duty
*Higher amount applies when purchasing as buy to let
or as an additional property
Status Agreed
Asking Price £205,000
Style Semi-detached
Bedrooms 3
Reception 1
EPC Rating B85/B85 - Download
Stamp Duty £ / £*
*Higher amount applies when purchasing as buy to let
or as an additional property

Key Features

Superb Semi Detached Property Set Within Consistently Popular Development
Three Bedrooms Including Master With Ensuite
Spacious Living Room
Luxury Kitchen With A Range Of Appliances & Casual Dining Area With Double Upvc Doors Leading Outside
Luxury Family Bathroom
Downstairs WC
Oil Fired Central Heating
PVC Double Glazing
Gardens To Front, Side & Rear With Paved Sitting Area
Tarmac Driveway For Several Vehicles
Popular & Convenient Location On The Periphery Of Antrim Town Centre
Close To Local Amenities, Schooling & Transport Routes
Ideal First Time Buy Or For Young Professional Couple

Description

Ideally located on the periphery of Antrim Town Centre, the property is well placed close to local amenities within the area, schooling, Antrim Hospital, and motorway networks connecting further afield.

The accommodation which is well presented throughout provides, three bedrooms, ensuite shower room, spacious living room, modern kitchen with casual dining area and modern bathroom . In addition, the property has enclosed rear gardens, and driveway parking.

Likely to be of interest to first time buyer, young couple or professionals in today's market. Viewing is by private appointment through our South Belfast office on 028 9066 8888.

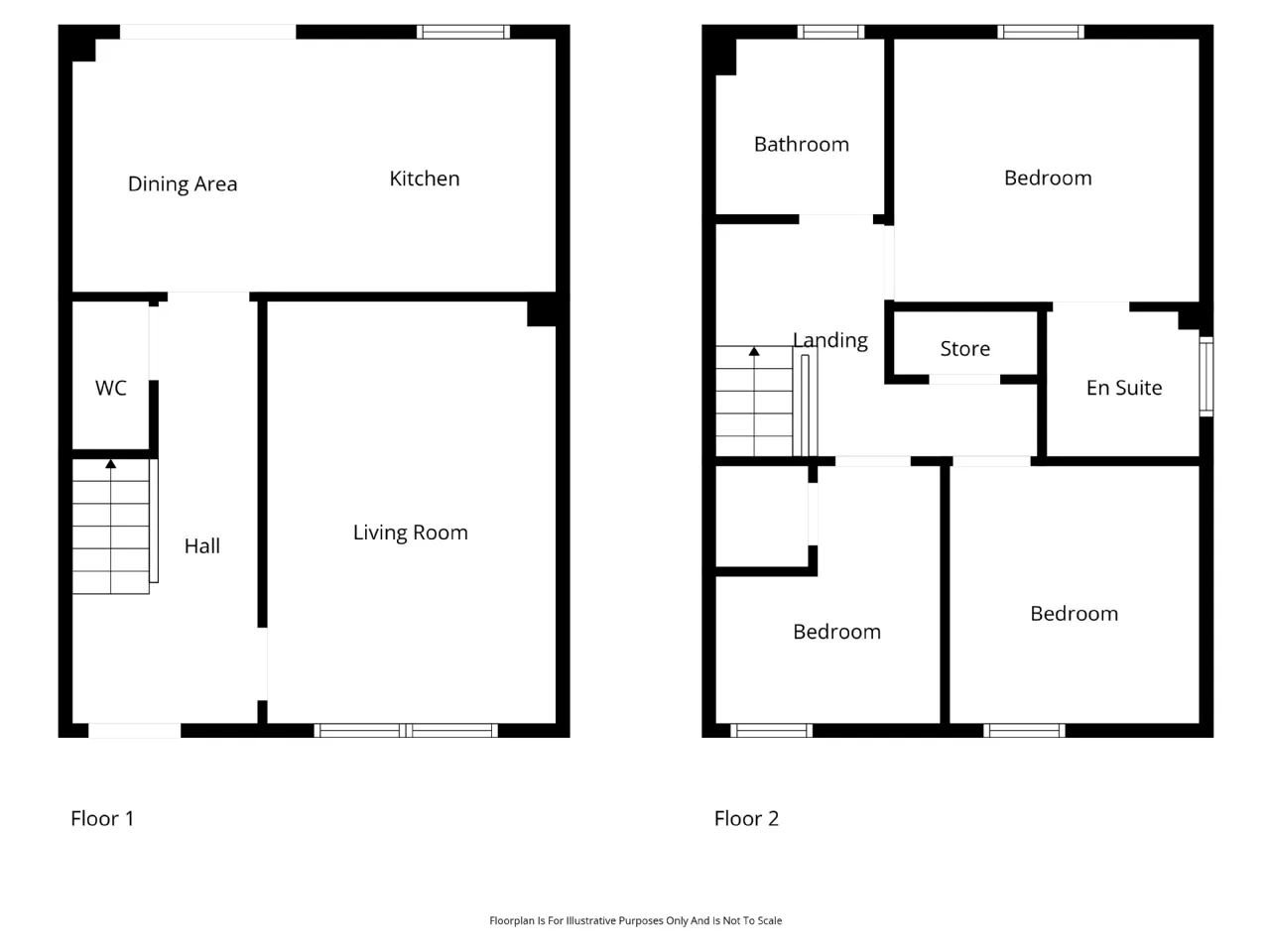
Rooms

ENTRANCE HALL: uPVC front door to entrance hall with ceramic tiled floor
DOWNSTAIRS WC: Ceramic tiled floor, low flush WC, pedestal wash hand basin and extractor fan.
LIVING ROOM: 15'8" x 10'9" (4.78m x 3.27m) Laminate Wooden Floor
KITCHEN/DINING AREA: 17'11" x 9'5" (5.47m x 2.87m) Ceramic tiled floor, range of high and low level units, sink, integrated dishwasher, integrated washing machine, under bench electric oven, four ring ceramic hob, integrated fridge/freezer, extractor fan, double uPVC doors leading outside.
FIRST FLOOR LANDING:
MAIN BEDROOM: 11'4" x 9'9" (3.46m x 2.98m)
ENSUITE SHOWER ROOM: Low flush WC, pedestal wash hand basin, shower cubicle, extractor fan
BEDROOM 2: 9'7" x 9'3" (2.92m x 2.83m)
BEDROOM 3: 9'7" x 8'4" (2.92m x 2.54m)
BATHROOM: Tiled floor, low flush WC, pedestal wash hand basin, freestanding bath with shower above, part tiled wall and extractor fan.
OUTSIDE: Garden To Front, Side And Rear In Lawns With paved Patio Area. Tarmac Driveway, Oil Fired Boiler, uPVC Oil Tank.
Contact Robin Lyons South Belfast +44 28 90668888 Email Enquiry

Location

Show Map
What's Near by?

Click below to see on map

Mortgage Calculator

Monthly Repayments Need Mortgage Advice?

Disclaimer: The following calculations act as a guide only, and are based on a typical repayment mortgage model. Financial decisions should not be made based on these calculations and accuracy is not guaranteed. Always seek professional advice before making any financial decisions.

Request More Information

Requesting Info about...
98 Bush Manor, Antrim, County Antrim, BT41 2WH 98 Bush Manor, Antrim, County Antrim, BT41 2WH

By registering your interest, you acknowledge our Privacy Policy and Terms & Conditions

Value My Property

Do you have a property to sell?
If you have a property to sell we can arrange for one of our experienced valuers to provide you with a no-obligation valuation.

Please complete the form opposite and a member of our team will get in touch to discuss your requirements.

Financial Services Enquiry

We can help with mortgages and insurance
John Minnis work with independent financial advisers that offer private mortgage advice and insurance options.

If you would like more information about what we can offer please complete the form opposite and a member of our team will get in touch to discuss your requirements.

Arrange a Viewing

Arrange a viewing for...
98 Bush Manor, Antrim, County Antrim, BT41 2WH 98 Bush Manor, Antrim, County Antrim, BT41 2WH

Make an Offer

Make an Offer for...
98 Bush Manor, Antrim, County Antrim, BT41 2WH LBR251538
Loading...