Javascript is vital for the advanced features in this website such as Property Search. Please enable or upgrade your browser

19 Lyndhurst Meadows

Belfast, County Antrim, BT13 3XG

Asking Price £260,000

19 Lyndhurst Meadows

Belfast, County Antrim, BT13 3XG

Asking Price £260,000
Status For Sale
Asking Price £260,000
Style Semi-detached
Bedrooms 4
Receptions 2
EPC Rating B82/B83 - Download
Stamp Duty £ / £*
Calculate Stamp Duty
*Higher amount applies when purchasing as buy to let
or as an additional property
Status For Sale
Asking Price £260,000
Style Semi-detached
Bedrooms 4
Receptions 2
EPC Rating B82/B83 - Download
Stamp Duty £ / £*
*Higher amount applies when purchasing as buy to let
or as an additional property

Key Features

Beautifully presented four-bedroom semi-detached chalet-style home extending to approximately 1,400 sq ft
Two/three reception rooms offering excellent flexibility for modern family living
Modern fitted kitchen with generous storage and preparation space
Ground floor bedroom and shower room, ideal for guests or multi-generational living
Energy-efficient home with solar photovoltaic panels and battery storage
Electric Velux roof windows enhancing natural light and ventilation
Thermostatic radiator valves throughout for improved heating efficiency
Detached wired garage
Front and rear driveways providing ample off-street parking and electric vehicle charging point
Landscaped rear garden with sheltered entertaining area

Description

Presenting this superb, modern four-bedroom semi-detached property located in the popular Lyndhurst Meadows development in Belfast.

Situated within a well-established and sought-after residential area, this beautifully presented chalet-style home offers spacious and flexible accommodation finished to an excellent modern standard. Extending to approximately 1,400 sq ft, the property has been thoughtfully upgraded by the current owners and benefits from a range of energy-efficient features throughout.

The accommodation is both well-proportioned and versatile. A bright entrance hall leads to a generous front living room, while to the rear there is a modern fitted kitchen offering excellent storage and preparation space. The ground floor further benefits from an additional front reception room and a flexible reception room or fourth bedroom, along with a contemporary bathroom with shower and a separate utility room.

Upstairs, the property provides three well-proportioned bedrooms and a modern family bathroom. Electric Velux roof windows in each room enhance the upper level with excellent natural light and ventilation.

Externally, the property enjoys an impressive rear garden designed with outdoor living in mind, featuring a raised patio area, covered seating space and a gated rear driveway. Additional outdoor features include two external electric points and hot and cold outdoor taps. To the front, there is a driveway with electric vehicle charging point, while the gated rear driveway leads to a detached garage with electric and roller door, providing excellent parking and storage.

Further benefits include solar panels with battery storage located within a fully floored loft, thermostatic radiator valves throughout and excellent energy efficiency. The property boasts an Energy Performance Rating of B, well above the Northern Ireland average.

Conveniently located close to a range of local amenities, schools and transport links, this attractive and energy-efficient family home will appeal to a wide range of buyers.

Early viewing is highly recommended.

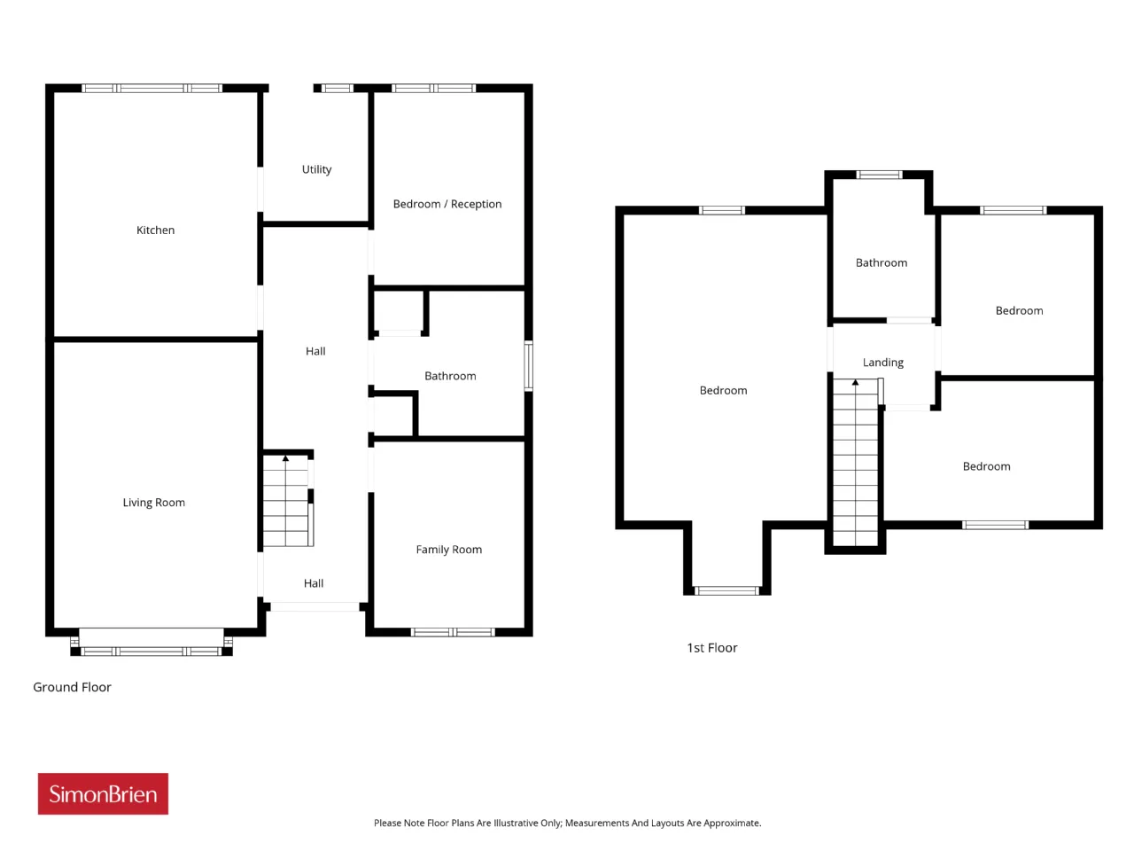
Rooms

GROUND FLOOR:
ENTRANCE: Double fronted glass doors, bright open hallway and contemporary staircase with built in cupboards.
LIVING ROOM: 16'9" x 11'11" (5.11m x 3.64m) Wood effect tile flooring.
RECEPTION ROOM: 11'1" x 9'1" (3.37m x 2.77m) To the front of the house and carpet floor.
BATHROOM: Comprises of low flush WC, built in sink with mixer tap, E-Velux windows, enclosed corner shower cubicle with electric shower, chrome heated towel rail and partly tiled walls.
RECEPTION ROOM TWO: 11'4" x 9'1" (3.46m x 2.77m) To the rear of the house.
KITCHEN/ DINING: 14'5" x 11'11" (4.40m x 3.63m) Wood effect tiled flooring, a range of high and low level units, high quality counter taps, integrated oven, five ring electric hob, overhead extractor unit, stainless steel sink unit with mixer tap, wine rack, kitchen island with casual dining space, space for fridge and freezer and dishwasher.
UTILITY ROOM: 7'11" x 6'2" (2.42m x 1.89m) Wood effect tiled flooring, high level units, high quality counter tops, plumbed for dryer and washing machine. Space for American fridge freezer and access to the rear.
FIRST FLOOR:
LANDING: Built in ladder for access to fully floored loft. 5kWh solar battery.
BEDROOM ONE: 22'3" x 12'2" (6.78m x 3.70m) Carpet floor, eve storage, dormer and E-Velux windows.
BEDROOM TWO: 9'6" x 9'0" (2.9m x 2.74m) Laminate flooring, built in wardrobes and a large E-Velux window.
BEDROOM THREE: 10'7" x 8'5" (3.23m x 2.57m) Laminate flooring, large E-Velux window and built in wardrobes.
OUTSIDE:
FRONT: Driveway parking for three cars and electric charging point. Laid in lawn.
GARDEN: Composite decking area, two outside taps (One for hot water), electric points, gated driveway, pergola area with moveable roof and light.
GARAGE: Electric and roller door.
RECEPTION/ BEDROOM: 11'4" x 9'1" (3.46m x 2.77m) To the rear of the house.
REAR: Composite decking area, two outside taps (One for hot water), electric points, pergola area with moveable roof and light. Gated driveway parking,
Contact Ieuan Gilbert North Belfast +44 28 96236996 Email Enquiry
Contact Leah Young North Belfast Email Enquiry

Location

Show Map
What's Near by?

Click below to see on map

Mortgage Calculator

Monthly Repayments Need Mortgage Advice?

Disclaimer: The following calculations act as a guide only, and are based on a typical repayment mortgage model. Financial decisions should not be made based on these calculations and accuracy is not guaranteed. Always seek professional advice before making any financial decisions.

Request More Information

Requesting Info about...
19 Lyndhurst Meadows, Belfast, County Antrim, BT13 3XG 19 Lyndhurst Meadows, Belfast, County Antrim, BT13 3XG

By registering your interest, you acknowledge our Privacy Policy and Terms & Conditions

Value My Property

Do you have a property to sell?
If you have a property to sell we can arrange for one of our experienced valuers to provide you with a no-obligation valuation.

Please complete the form opposite and a member of our team will get in touch to discuss your requirements.

Financial Services Enquiry

We can help with mortgages and insurance
John Minnis work with independent financial advisers that offer private mortgage advice and insurance options.

If you would like more information about what we can offer please complete the form opposite and a member of our team will get in touch to discuss your requirements.

Arrange a Viewing

Arrange a viewing for...
19 Lyndhurst Meadows, Belfast, County Antrim, BT13 3XG 19 Lyndhurst Meadows, Belfast, County Antrim, BT13 3XG

Make an Offer

Make an Offer for...
19 Lyndhurst Meadows, Belfast, County Antrim, BT13 3XG NBF260055
Loading...