Javascript is vital for the advanced features in this website such as Property Search. Please enable or upgrade your browser

6 Clonallon Gardens

Belfast, County Antrim, BT4 2BY

Asking Price £325,000

6 Clonallon Gardens

Belfast, County Antrim, BT4 2BY

Asking Price £325,000
Status For Sale
Asking Price £325,000
Style Semi-detached
Bedrooms 3
Reception 1
EPC Rating C71/C76 - Download
Stamp Duty £ / £*
Calculate Stamp Duty
*Higher amount applies when purchasing as buy to let
or as an additional property
Status For Sale
Asking Price £325,000
Style Semi-detached
Bedrooms 3
Reception 1
EPC Rating C71/C76 - Download
Stamp Duty £ / £*
*Higher amount applies when purchasing as buy to let
or as an additional property

Key Features

Attractive Semi Detached Property On Large Site
Three Bedrooms
Living Room open plan to Fitted Kitchen and Dining Area
Large Shower Room
Ground floor cloakroom with WC
Gas Fired Central Heating
uPVC Double Glazed Window Frames
Ample Off Street Parking
Detached Garage
Large rear Garden
Within Walking Distance Of Leading Primary & Post Primary School, Shops & Restaurants
Convenient To Belmont Village, Ballyhackamore & Belfast City Centre

Description

This attractive semi-detached property is found off the Belmont Road, in Clonallon Gardens, within walking distance of the vast array of amenities within this very popular part of East Belfast.

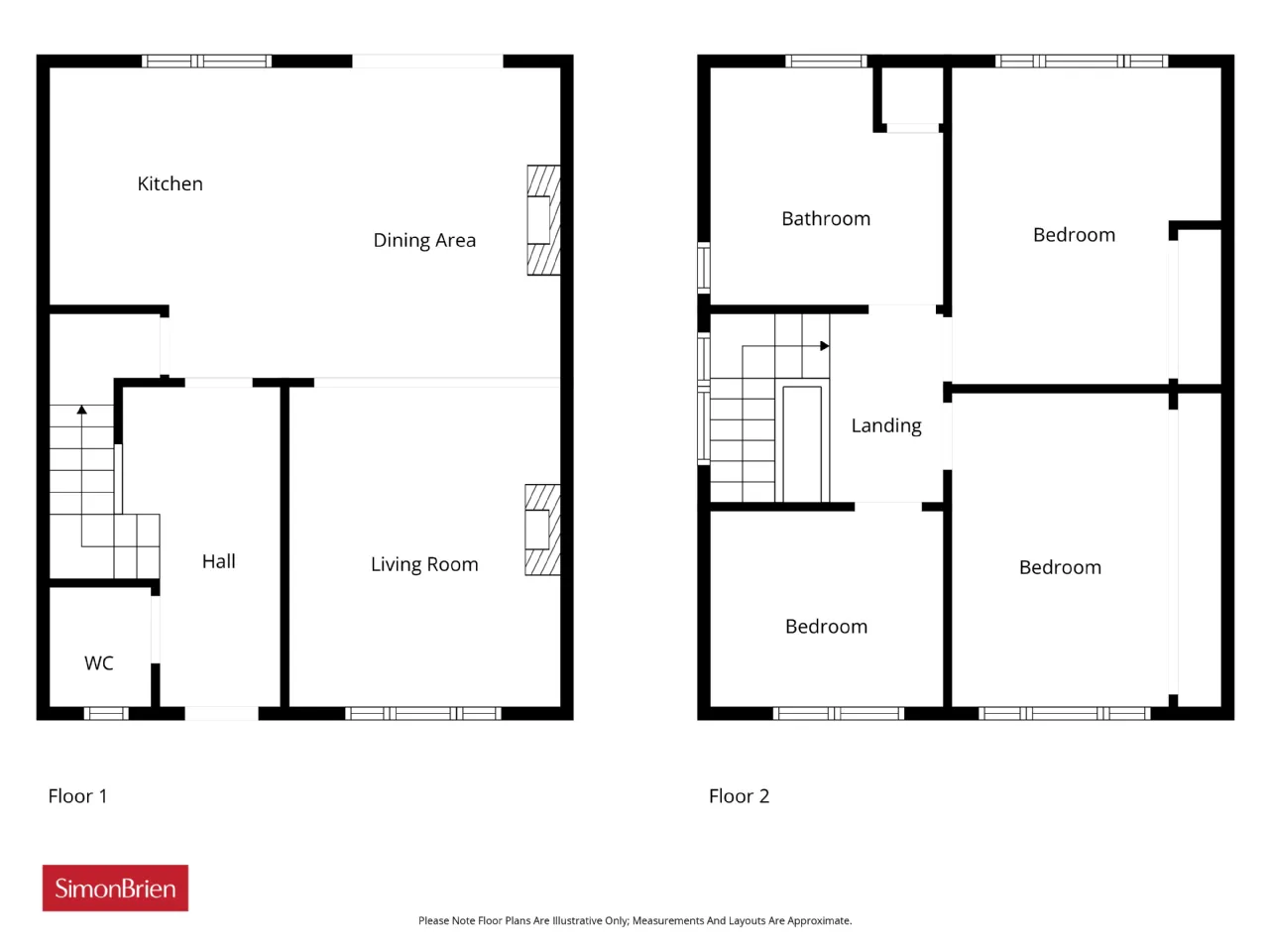
The property comprises an entrance hall, cloakroom with wc, living room open to kitchen and dining area. On the first floor, there are three bedrooms and a large shower room in white suite. Outside, the property has a large site with ample off street parking, detached garage and large rear gardens.

Ready to walk in and put your furniture down, this property comes to the market and will no doubt appeal to those seeking to find a well finished home within this wonderful location. Early viewing is recommended.

Rooms

GROUND FLOOR: Entrance Door.
ENTRANCE HALL:
CLOAKROOM: Low flush WC, wash hand basin with mixer taps, ceramic tiled floor.
KITCHEN WITH DINING AREA: 20'3" x 12'3" (6.17m x 3.73m) Full range of high and low level white high gloss units, single drainer sink unit with mixer taps, central island, Smeg 4 ring gas hob and Smeg eye level oven, built in dishwasher, plumbed for washing machine, wood laminate floor. Open to:
LIVING ROOM: 12'5" x 12'3" (3.78m x 3.73m) Cast iron wood burning stove, wood laminate floor.
FIRST FLOOR:
BEDROOM 1: 12'8" x 8'8" (3.86m x 2.64m to robes.) Wardrobes with mirrored sliding doors.
BEDROOM 2: 12'4" x 10'7" (3.76m x 3.23m) Built in robes with mirrored sliding doors.
BEDROOM 3: 8'3" x 7'9" (2.51m x 2.36m)
SHOWER ROOM: Fully tiled shower cubicle with overhead rain shower, low flush WC, vanity sink unit, PVC panelled walls, chrome towel radiator.
OUTSIDE: To the rear is a paved patio with southerly aspect and garden laid in lawn. Bin store to side. To the front is a large driveway.
DETACHED GARAGE: 18'7" x 9'10" (5.66m x 3m) Roller door, side service door.
Contact Samuel Dickey East Belfast 028 90595555 Email Enquiry

Location

Show Map
What's Near by?

Click below to see on map

Mortgage Calculator

Monthly Repayments Need Mortgage Advice?

Disclaimer: The following calculations act as a guide only, and are based on a typical repayment mortgage model. Financial decisions should not be made based on these calculations and accuracy is not guaranteed. Always seek professional advice before making any financial decisions.

Request More Information

Requesting Info about...
6 Clonallon Gardens, Belfast, County Antrim, BT4 2BY 6 Clonallon Gardens, Belfast, County Antrim, BT4 2BY

By registering your interest, you acknowledge our Privacy Policy and Terms & Conditions

Value My Property

Do you have a property to sell?
If you have a property to sell we can arrange for one of our experienced valuers to provide you with a no-obligation valuation.

Please complete the form opposite and a member of our team will get in touch to discuss your requirements.

Financial Services Enquiry

We can help with mortgages and insurance
John Minnis work with independent financial advisers that offer private mortgage advice and insurance options.

If you would like more information about what we can offer please complete the form opposite and a member of our team will get in touch to discuss your requirements.

Arrange a Viewing

Arrange a viewing for...
6 Clonallon Gardens, Belfast, County Antrim, BT4 2BY 6 Clonallon Gardens, Belfast, County Antrim, BT4 2BY

Make an Offer

Make an Offer for...
6 Clonallon Gardens, Belfast, County Antrim, BT4 2BY UNT250386
Loading...