Javascript is vital for the advanced features in this website such as Property Search. Please enable or upgrade your browser

11 Wolseley Street

Belfast, County Antrim, BT7 1LG

Asking Price £225,000

11 Wolseley Street

Belfast, County Antrim, BT7 1LG

Asking Price £225,000
Status For Sale
Asking Price £225,000
Style Terraced House
Bedrooms 4
Receptions 2
EPC Rating F30/C77 - Download
Stamp Duty £ / £*
Calculate Stamp Duty
*Higher amount applies when purchasing as buy to let
or as an additional property
Status For Sale
Asking Price £225,000
Style Terraced House
Bedrooms 4
Receptions 2
EPC Rating F30/C77 - Download
Stamp Duty £ / £*
*Higher amount applies when purchasing as buy to let
or as an additional property

Key Features

Attractive red-brick terrace
Partial uPVC double glazing
Economy 7 heating
Investment opportunity consisting of a one-bedroom & two-bedroom flats
Situated in popular Botanic area in Belfast
Generating a total income of £17,820 per annum

Description

Located in the popular Botanic area of Belfast, the property is well placed to local amenities and is within comfortable walking distance of Belfast City Centre and Queen's University.

The property consists of a one-bedroom ground floor flat and a three-bedroom flat on the first and second floor and acheives a cumulative rent of £17,820 per annum.

Viewing by appointment through our South Belfast office on 028 9066 8888.

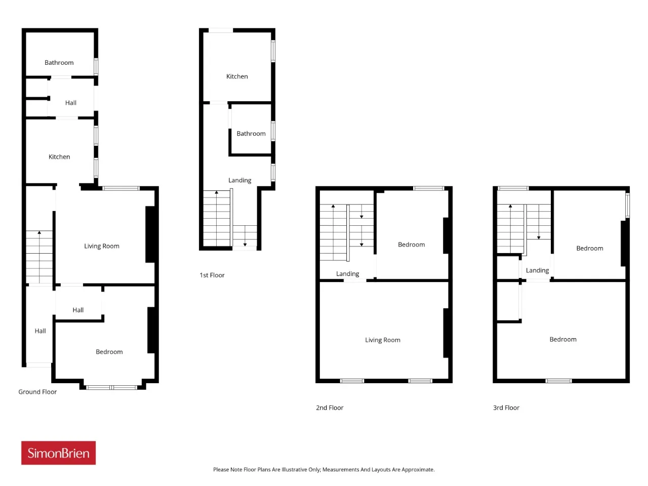
Rooms

FLAT ONE: Double Glazed, Economy seven heating.
BEDROOM: 13'5" x 11'1" (4.1m x 3.39m)
LIVING ROOM: 11'6" x 10'11" (4.70m x 3.66m)
KITCHEN: 7'10" x 7'6" (2.39m x 2.28m) High and low level units with electric oven, extractor hood, stainless steel sink unit and mixer tap.
BATHROOM: Panelled, tiled floor and corner shower.
FLAT 2: Double Glazed, Economy seven heating.
KITCHEN AND FIRE ESCAPE: 8'5" x 8'3" (2.56m x 2.52m) High and low level units, stainless steel sink with mixer tap, electric oven and extractor hood.
BEDROOM ONE: 10'11" x 8'11" (3.32m x 2.71m)
SECOND FLOOR:
HOT PRESS:
BEDROOM TWO: 16'8" x 12'1" (5.07m x 3.68m) Built in wardrobe.
BEDROOM THREE: 11'0" x 8'9" (3.35m x 2.66m)
Contact Ieuan Gilbert North Belfast +44 28 96236996 Email Enquiry
Contact Leah Young North Belfast +44 28 9623 6996 Email Enquiry

Location

Show Map
What's Near by?

Click below to see on map

Mortgage Calculator

Monthly Repayments Need Mortgage Advice?

Disclaimer: The following calculations act as a guide only, and are based on a typical repayment mortgage model. Financial decisions should not be made based on these calculations and accuracy is not guaranteed. Always seek professional advice before making any financial decisions.

Share Property

Request More Information

Requesting Info about...
11 Wolseley Street, Belfast, County Antrim, BT7 1LG 11 Wolseley Street, Belfast, County Antrim, BT7 1LG

By registering your interest, you acknowledge our Privacy Policy and Terms & Conditions

Value My Property

Do you have a property to sell?
If you have a property to sell we can arrange for one of our experienced valuers to provide you with a no-obligation valuation.

Please complete the form opposite and a member of our team will get in touch to discuss your requirements.

Financial Services Enquiry

We can help with mortgages and insurance
John Minnis work with independent financial advisers that offer private mortgage advice and insurance options.

If you would like more information about what we can offer please complete the form opposite and a member of our team will get in touch to discuss your requirements.

Arrange a Viewing

Arrange a viewing for...
11 Wolseley Street, Belfast, County Antrim, BT7 1LG 11 Wolseley Street, Belfast, County Antrim, BT7 1LG

Make an Offer

Make an Offer for...
11 Wolseley Street, Belfast, County Antrim, BT7 1LG NBF260049
Loading...