Javascript is vital for the advanced features in this website such as Property Search. Please enable or upgrade your browser

142 High Street

Holywood, County Down, BT18 9HS

Asking Price £475,000

142 High Street

Holywood, County Down, BT18 9HS

Asking Price £475,000
Status For Sale
Asking Price £475,000
Style Terraced House
Bedrooms 6
Receptions 2
EPC Rating F30/B81 - Download
Stamp Duty £ / £*
Calculate Stamp Duty
*Higher amount applies when purchasing as buy to let
or as an additional property
Status For Sale
Asking Price £475,000
Style Terraced House
Bedrooms 6
Receptions 2
EPC Rating F30/B81 - Download
Stamp Duty £ / £*
*Higher amount applies when purchasing as buy to let
or as an additional property

Key Features

Rare opportunity to acquire one of Holywood’s original period High Street terraces
Superb views over Belfast Lough and the Antrim Hills from the upper floors
Retains many original period features and architectural character
Currently occupied as a business, offering flexible potential for residential or investment use
Excellent renovation opportunity – a blank canvas to restore to its former glory
Accommodation arranged over three floors
Up to 6 office spaces located across the first and second floors
2 spacious office spaces on the ground floor
Utility room and large storage area
Oil fired central heating
Rear parking for up to four cars accessed via Ean Hill
Doorstep convenience to Holywood’s Restaurants and Amenities
Ease of access for the City Commuter via Road and Rail as well as an excellent range of Primary and Grammar Schools

Description

Interested in this property? Sign up for MY Simon Brien to arrange your viewing, see current offers or make your own offer. Register now at SimonBrien.com.

This is a rare opportunity to acquire one of Holywood’s original period High Street terraces which enjoys excellent views over Belfast Lough and the Antrim Hills from the upper floors.
Internally, this property retains many original features typical of properties from this era, adding character and charm throughout. Currently occupied as a business, the property will appeal to a wide range of potential purchasers, including those seeking a distinctive residential home or investment opportunity.
The accommodation is arranged over three floors and offers generous office space but could revert to residential accommodation if desired.
This property presents a blank canvas for a new owner to restore and transform it to its former glory.
Parking for up to four cars is available to the rear of the property, accessed via Ean Hill.
Rarely do properties of this nature come to the open market, and we are confident that interest will be immediate and strong.

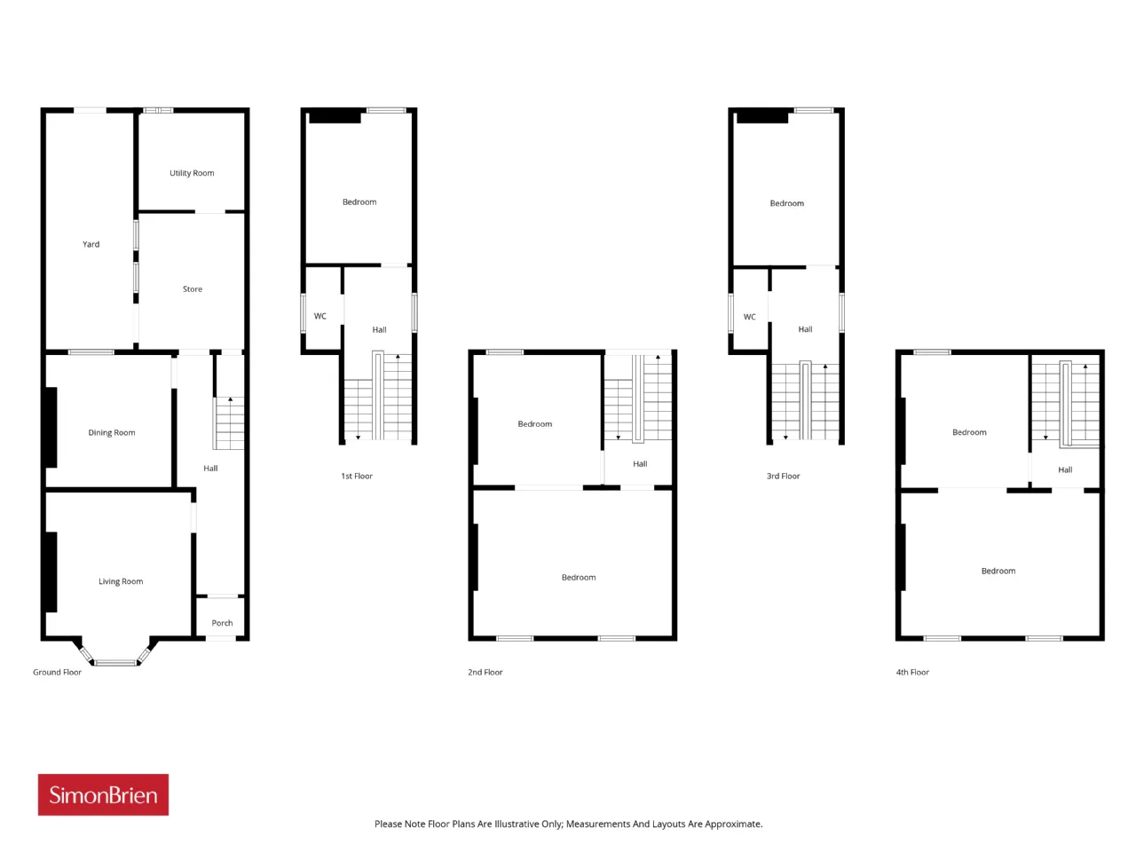
Rooms

ENTRANCE: Paved front courtyard. Original hardwood front door and fan light.
RECEPTION PORCH: Ceramic tiled floor, original stained leaded glass hardwood inner door and side panel to:
RECEPTION HALL: Solid wood flooring, corniced ceiling, ceiling rose, corbels, part wall panelling.
LIVING ROOM: 16'3" x 14'2" (4.95m x 4.32m Into bay.) Solid wood flooring, picture rail, corniced ceiling, ceiling rose.
DINING ROOM: 12'4" x 12'4" (3.84m x 3.73m At widest points) Picture rail, corniced ceiling.
REAR HALL: 12'7" x 10'5" (3.84m x 3.18m) Hardwood door to courtyard. Access to under stairs storage cupboard.
UTILITY ROOM: 16'4" x 9'0" (4.98m x 2.92m) Range of low level units, laminate work surfaces, single drainer stainless steel sink unit, ceramic tiled floor, oil fired boiler.
FIRST FLOOR RETURN:
BEDROOM: 13'5" x 10'3" (3.8m x 3.76m) Corniced ceiling.
WC: Low flush WC, pedestal wash hand basin, ceramic tiled floor.
FIRST FLOOR:
BEDROOM/LOUNGE: 18'8" x 14'3" (5.7m x 4.34m) Picture rail, corniced ceiling, ceiling rose, sea glimpses, archway to:
SECOND FLOOR RETURN:
SECOND FLOOR:
OUTSIDE: Parking for 4 cars.
LIVING ROOM/ OFFICE SPACE: 16'3" x 14'2" (4.95m x 4.32m Into bay.) Solid wood flooring, picture rail, corniced ceiling, ceiling rose.
DINING ROOM/ OFFICE SPACE: 12'4" x 12'4" (3.84m x 3.73m At widest points) Picture rail, corniced ceiling.
BEDROOM/ OFFICE SPACE: 13'5" x 10'3" (4.11m x 3.07m)
BEDROOM/LOUNGE/ OFFICE SPACE: 18'8" x 14'3" (5.7m x 4.34m) Picture rail, corniced ceiling, ceiling rose, sea glimpses, archway to:
LIVING ROOM/OFFICE SPACE: 16'3" x 14'2" (4.95m x 4.32m Into bay.) Solid wood flooring, picture rail, corniced ceiling, ceiling rose.
DINING ROOM/OFFICE SPACE: 12'4" x 12'4" (3.84m x 3.73m At widest points) Picture rail, corniced ceiling.
BEDROOM/OFFICE SPACE: 13'5" x 10'3" (3.8m x 3.76m) Corniced ceiling.
BEDROOM/LOUNGE/OFFICE SPACE: 18'8" x 14'3" (5.7m x 4.34m) Picture rail, corniced ceiling, ceiling rose, sea glimpses, archway to:
OFFICE 1: 16'3" x 14'2" (4.95m x 4.32m Into bay.) Solid wood flooring, picture rail, corniced ceiling, ceiling rose.
OFFICE 2: 12'4" x 12'4" (3.76m x 3.76m) Solid wood flooring, ceiling rose, outlook to rear courtyard.
OFFICE 3: 13'5" x 10'3" (4.1m x 3.12m)
OFFICE 4: 18'8" x 14'3" (5.7m x 4.34m) Picture rail, corniced ceiling, ceiling rose, sea glimpses, archway to:
OFFICE 5: 12'7" x 12'3" (3.84m x 3.73m At widest points) Picture rail, corniced ceiling.
OFFICE 6: 13'6" x 10'1" (4.11m x 3.07m)
OFFICE 7: 18'8" x 14'5" (5.7m x 4.4m) Elevated views to Belfast Lough and Antrim Coastline. Archway to:
OFFICE 8: 12'6" x 12'4" (3.8m x 3.76m) Corniced ceiling.
Contact Jennie McEwan Holywood +44 28 90428989 Email Enquiry

Location

Show Map
What's Near by?

Click below to see on map

Mortgage Calculator

Monthly Repayments Need Mortgage Advice?

Disclaimer: The following calculations act as a guide only, and are based on a typical repayment mortgage model. Financial decisions should not be made based on these calculations and accuracy is not guaranteed. Always seek professional advice before making any financial decisions.

Request More Information

Requesting Info about...
142 High Street, Holywood, County Down, BT18 9HS 142 High Street, Holywood, County Down, BT18 9HS

By registering your interest, you acknowledge our Privacy Policy and Terms & Conditions

Value My Property

Do you have a property to sell?
If you have a property to sell we can arrange for one of our experienced valuers to provide you with a no-obligation valuation.

Please complete the form opposite and a member of our team will get in touch to discuss your requirements.

Financial Services Enquiry

We can help with mortgages and insurance
John Minnis work with independent financial advisers that offer private mortgage advice and insurance options.

If you would like more information about what we can offer please complete the form opposite and a member of our team will get in touch to discuss your requirements.

Arrange a Viewing

Arrange a viewing for...
142 High Street, Holywood, County Down, BT18 9HS 142 High Street, Holywood, County Down, BT18 9HS

Make an Offer

Make an Offer for...
142 High Street, Holywood, County Down, BT18 9HS HLW260139
Loading...