Javascript is vital for the advanced features in this website such as Property Search. Please enable or upgrade your browser

5 Spinners Gate

Killinchy, Newtownards, BT23 6WB

Asking Price £335,000

5 Spinners Gate

Killinchy, Newtownards, BT23 6WB

Asking Price £335,000
Status For Sale
Asking Price £335,000
Style Detached
Bedrooms 4
Receptions 2
EPC Rating B83/B83 - Download
Stamp Duty £ / £*
Calculate Stamp Duty
*Higher amount applies when purchasing as buy to let
or as an additional property
Status For Sale
Asking Price £335,000
Style Detached
Bedrooms 4
Receptions 2
EPC Rating B83/B83 - Download
Stamp Duty £ / £*
*Higher amount applies when purchasing as buy to let
or as an additional property

Key Features

An attractive, modern detached family home
Located within the popular 'Spinners Gate Development', constructed in 2018
A light stroll from Balloo House and pub, Country store, Killinchy Spar, and petrol station with large Centra supermarket
Commuter routes to Saintfield, Killyleagh, Comber and Belfast immediately accessed from the property
Close to Strangford Lough, Whiterock Bay, Daft Eddy’s and Strangford Lough Activity Centre
Welcoming Entrance Hall
Black composite front door
Large lounge with dual aspect and views to open countryside
Luxury kitchen/dining room with cream shaker style units, range of integrated appliances and French doors to garden
Separate utility room with matching units
Four good sized bedrooms, bedroom one with modern en-suite facility
Luxury family bathroom comprising modern white suite
Garden to front, side and rear in lawns, modern patio shrub beds and fencing
Insulated garden room in rear garden
Great tarmac driveway to side of property with ample off-road parking
Circa 1,450 sqft
Management Company Fee: £130 P.A currently
Gas fired central heating system/Grey Upvc double glazed windows and doors

Description

A beautifully appointed four bed detached home, located within the popular 'Spinners Gate Development'. Ideally positioned at the front of the development offering an open aspect to farmland at the front, this deceptively spacious property would be perfect for a young family seeking to upsize or those seeking to downsize from a larger home and gain convenience.

Located within the Balloo hamlet and a light stroll from the multi award winning Balloo House restaurant and Country Pub, Killinchy Spar, Country Store, Conservatory Café, Crafty Fox and a Petrol Station with large Centra supermarket. Also within easy reach is Strangford Lough, Whiterock Bay, Daft Eddy’s and commuter routes to Saintfield, Killyleagh, Comber and Belfast.

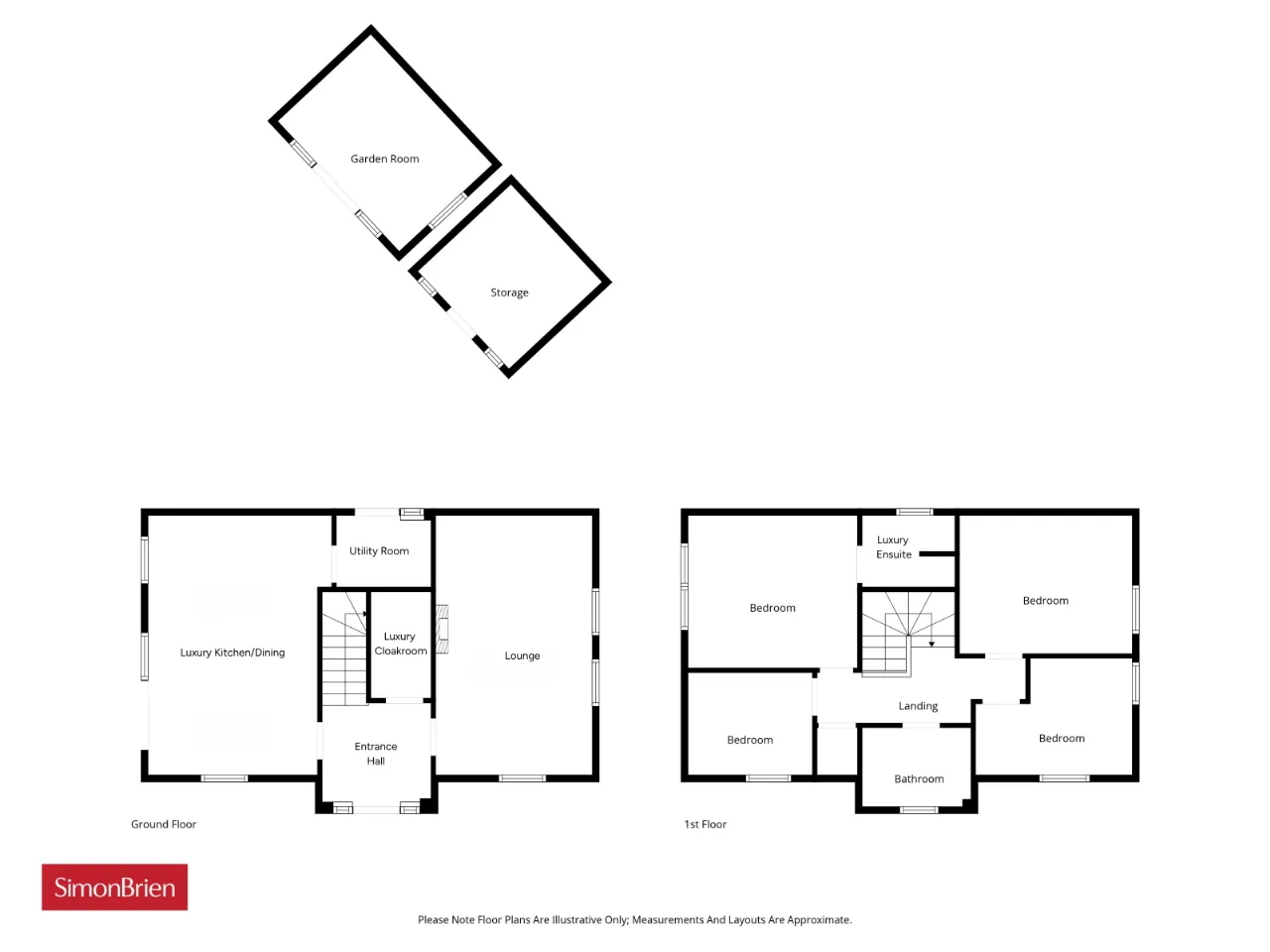
Internally the subject property offers deceptive accommodation including Entrance Hall, luxury downstairs cloakroom, dual aspect lounge, luxury fitted kitchen/dining room, separate utility, four good sized bedrooms, bedroom one with modern en-suite facility and luxury family bathroom. Externally the property rests on a well-tended level site with manicured lawns, large patio, shrub beds and modern garden room.

A superb property in immaculate condition throughout, please contact our Newtownards office on 02891 800700 to arrange your viewing at your earliest convenience.

Rooms

GROUND FLOOR: Black composite front door, outside light.
ENTRANCE HALL: Ceramic tiled floor.
LUXURY CLOAKROOM: Modern white suite comprising: Wall mounted wash hand basin with mixer taps, push button WC, extractor fan.
LOUNGE: 18'7" x 11'4" (5.66m x 3.45m) Dual aspect with countryside views, LED recessed spotlighting.
LUXURY KITCHEN/DINING: 18'6" x 11'4" (5.64m x 3.45m) 1.5 tub single drainer stainless steel sink unit with mixer taps, range of high and low level cream shaker style units, wood effect Formica roll edge work surfaces, 4 ring ceramic hob unit, double built in oven, glass splash back, stainless steel extractor hood, integrated fridge freezer and dishwasher, dual aspect, uPVC double glazed French doors to side garden, countryside views.
UTILITY ROOM: 6'6" x 4'11" (1.98m x 1.5m) Wood effect Formica roll edge work surfaces, plumbed for washing machine, range of high and low level matching units, wall tiling, ceramic tiled floor, uPVC double glazed door to rear.
STAIRCASE WITH LED LIGHTING TO FIRST FLOOR:
LANDING: Access to roof space, linen cupboard.
BEDROOM 1: 11'4" x 10'10" (3.45m x 3.3m) LED recessed spotlighting.
LUXURY ENSUITE:: Modern white suite comprising: Separate fully tiled shower cubicle, thermostatically controlled shower, wall mounted wash hand basin with mixer taps, push button WC, chrome towel radiator, feature wall tiling, ceramic tiled floor, extractor fan.
BEDROOM 2: 12'9" x 9'10" (3.89m x 3m) Countryside views.
BEDROOM 3: 8'4" x 7'3" (2.54m x 2.2m) Countryside views.
BEDROOM 4: 11'5" x 8'4" (3.48m x 2.54m (L Shaped)) Dual aspect, countryside views.
LUXURY BATHROOM: Modern white suite comprising: Shower bath with mixer taps, thermostatically controlled shower over bath, glass shower screen, wall mounted wash hand basin with mixer taps, push button WC, chrome towel radiator, feature wall tiling, ceramic tiled floor, extractor fan, countryside views.
OUTSIDE: Gardens to front, side and rear laid out in manicured lawn, large modern patio, flowerbeds, shrubs, fencing, outside water tap, outside light.
GARDEN ROOM: 12'9" x 9'5" (3.89m x 2.87m) Insulated, painted, light and power, uPVC double glazed French doors to Garden. Great tarmac driveway to side of property.
Contact Richard Orr Newtownards +44 28 91800700 Email Enquiry
Contact Phoebe Skelton Newtownards +44 28 9180 0700 Email Enquiry

Location

Show Map
What's Near by?

Click below to see on map

Mortgage Calculator

Monthly Repayments Need Mortgage Advice?

Disclaimer: The following calculations act as a guide only, and are based on a typical repayment mortgage model. Financial decisions should not be made based on these calculations and accuracy is not guaranteed. Always seek professional advice before making any financial decisions.

Share Property

Request More Information

Requesting Info about...
5 Spinners Gate, Killinchy, Newtownards, BT23 6WB 5 Spinners Gate, Killinchy, Newtownards, BT23 6WB

By registering your interest, you acknowledge our Privacy Policy and Terms & Conditions

Value My Property

Do you have a property to sell?
If you have a property to sell we can arrange for one of our experienced valuers to provide you with a no-obligation valuation.

Please complete the form opposite and a member of our team will get in touch to discuss your requirements.

Financial Services Enquiry

We can help with mortgages and insurance
John Minnis work with independent financial advisers that offer private mortgage advice and insurance options.

If you would like more information about what we can offer please complete the form opposite and a member of our team will get in touch to discuss your requirements.

Arrange a Viewing

Arrange a viewing for...
5 Spinners Gate, Killinchy, Newtownards, BT23 6WB 5 Spinners Gate, Killinchy, Newtownards, BT23 6WB

Make an Offer

Make an Offer for...
5 Spinners Gate, Killinchy, Newtownards, BT23 6WB NTN250060
Loading...