Javascript is vital for the advanced features in this website such as Property Search. Please enable or upgrade your browser

16 Cranmore Gardens

Belfast, County Antrim, BT9 6JL

Offers Over £950,000

16 Cranmore Gardens

Belfast, County Antrim, BT9 6JL

Offers Over £950,000
Status Agreed
Offers Over £950,000
Style Detached
Bedrooms 4
Receptions 3
Heating GFCH
EPC Rating D64/C75 - Download
Stamp Duty £ / £*
Calculate Stamp Duty
*Higher amount applies when purchasing as buy to let
or as an additional property
Status Agreed
Offers Over £950,000
Style Detached
Bedrooms 4
Receptions 3
Heating GFCH
EPC Rating D64/C75 - Download
Stamp Duty £ / £*
*Higher amount applies when purchasing as buy to let
or as an additional property

Key Features

Attractive Red Brick Double Fronted Detached Family Home
Set Within Sought After Tree Lined Park
Four Double Bedrooms, Two with Dressing Rooms
Three Reception Rooms
Large Family Kitchen/Dining Area
Cloakroom and Utility Room
Three Ensuites
Gas Fired Central Heating
Double Glazing
Detached Garage
Gardens to Rear
Exceptional Location off Lisburn Road with its vast array of local amenities, shops, pubs, cafes and restaurants
High Quality Schooling Close By
Viewing Highly Recommended and by Private Appointment

Description

A most attractive, restored double fronted Victorian detached property in this highly regarded residential address.


Whilst the traditional character and features of a Victorian house have been fully retained in the restoration, the property offers a bright, spacious contemporary interior, ideal for modern family living.


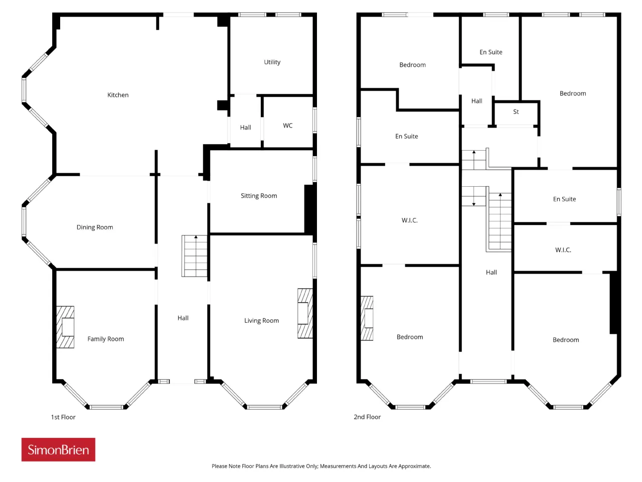
The accommodation comprises, a reception hall, three reception rooms, high quality kitchen open to dining, utility room and cloakroom. On the first floor, there are four double bedrooms, two with dressing rooms and three ensuites


Outside, there is a detached garage, generous parking to the front of the property and gardens to the rear.



The property is exceptionally well located along a tree lined park, only a minutes’ walk from the Lisburn Road, and is also conveniently located with an excellent choice of schools within close proximity, and leisure / recreational amenities including Malone and Balmoral Golf Clubs, the Lagan Valley Regional Park, and Belfast City Centre all within easy access.



All in all, a superbly well-appointed family house in a highly regarded and most convenient residential location.

Rooms

ENTRANCE HALL:
LIVING ROOM: (6.41m x 3.88m)
FAMILY ROOM: (5.07m x 3.72m)
SITTING ROOM: (3.88m x 3.11m)
KITCHEN: (5.90m x 4.94m)
DINING ROOM: (4.87m x 3.48m)
UTILITY ROOM: (3.12m x 2.92m)
WC:
FIRST FLOOR LANDING:
BEDROOM: (3.72m x 3.47m)
WALK IN CLOSET: (3.88m x 1.74m)
ENSUITE:
OUTSIDE:
Contact Mark Leinster South Belfast +44 28 90668888 Email Enquiry
Contact Ieuan Gilbert North Belfast +442896236996 Email Enquiry

Location

Show Map
What's Near by?

Click below to see on map

Mortgage Calculator

Monthly Repayments Need Mortgage Advice?

Disclaimer: The following calculations act as a guide only, and are based on a typical repayment mortgage model. Financial decisions should not be made based on these calculations and accuracy is not guaranteed. Always seek professional advice before making any financial decisions.

Request More Information

Requesting Info about...
16 Cranmore Gardens, Belfast, County Antrim, BT9 6JL 16 Cranmore Gardens, Belfast, County Antrim, BT9 6JL

By registering your interest, you acknowledge our Privacy Policy and Terms & Conditions

Value My Property

Do you have a property to sell?
If you have a property to sell we can arrange for one of our experienced valuers to provide you with a no-obligation valuation.

Please complete the form opposite and a member of our team will get in touch to discuss your requirements.

Financial Services Enquiry

We can help with mortgages and insurance
John Minnis work with independent financial advisers that offer private mortgage advice and insurance options.

If you would like more information about what we can offer please complete the form opposite and a member of our team will get in touch to discuss your requirements.

Arrange a Viewing

Arrange a viewing for...
16 Cranmore Gardens, Belfast, County Antrim, BT9 6JL 16 Cranmore Gardens, Belfast, County Antrim, BT9 6JL

Make an Offer

Make an Offer for...
16 Cranmore Gardens, Belfast, County Antrim, BT9 6JL LBR251818
Loading...