Javascript is vital for the advanced features in this website such as Property Search. Please enable or upgrade your browser

30 Cadogan Park

Belfast, County Antrim, BT9 6HH

Asking Price £1,200,000

30 Cadogan Park

Belfast, County Antrim, BT9 6HH

Asking Price £1,200,000
Status For Sale
Asking Price £1,200,000
Style Semi-detached
Bedrooms 7
Receptions 4
EPC Rating E53/C80 - Download
Stamp Duty £ / £*
Calculate Stamp Duty
*Higher amount applies when purchasing as buy to let
or as an additional property
Status For Sale
Asking Price £1,200,000
Style Semi-detached
Bedrooms 7
Receptions 4
EPC Rating E53/C80 - Download
Stamp Duty £ / £*
*Higher amount applies when purchasing as buy to let
or as an additional property

Key Features

Truly magnificent red brick family home constructed in 1911 on a generous elevated site
Most sought-after location near to a wealth of amenities and services
Drawing room with fabulous bay window and wood-burning stove, separate formal dining room
Spacious living room also with wood burning stove and family room overlooking rear garden
Kitchen with casual dining space and mains gas Aga, separate utility room
Ground floor cloakroom with WC, first floor family bathroom and additional shower room
Four first floor bedrooms, principal with shower and vanity unit
Three further second floor bedrooms, luggage room and storage room plumbed for a bathroom suite
Array of period features including cornicing, charming fireplaces, stained glass and sash window frames
Ample driveway parking, mature front and rear gardens in lawns with terraces and private seating areas

Description

Constructed in 1911 and boasting an array of well-maintained period features this charming family home enjoys a prominent position in this ever sought after park near to a diverse range of amenities and attractions including leading schools, road networks, sports facilities and many tempting bars and restaurants.



Over three floors the property offers plentiful accommodation with a warm and welcoming feel throughout enhanced by many features including characterful stain-glass windows, intricate cornicing, feature fireplaces and many sash window frames. There are four separate reception rooms, a kitchen with cosy gas-fired Aga, cloakroom with WC, first floor bathroom, a shower room and up to seven double bedrooms – or a mix of bedrooms, home offices, playrooms or fitness suites. Externally there is ample parking and mature gardens in lawns with well stocked beds and a number of terraces and seating areas to relax and unwind.



Rarely do properties of this nature come onto the open market and as such we recommend an internal appraisal at your convenience.

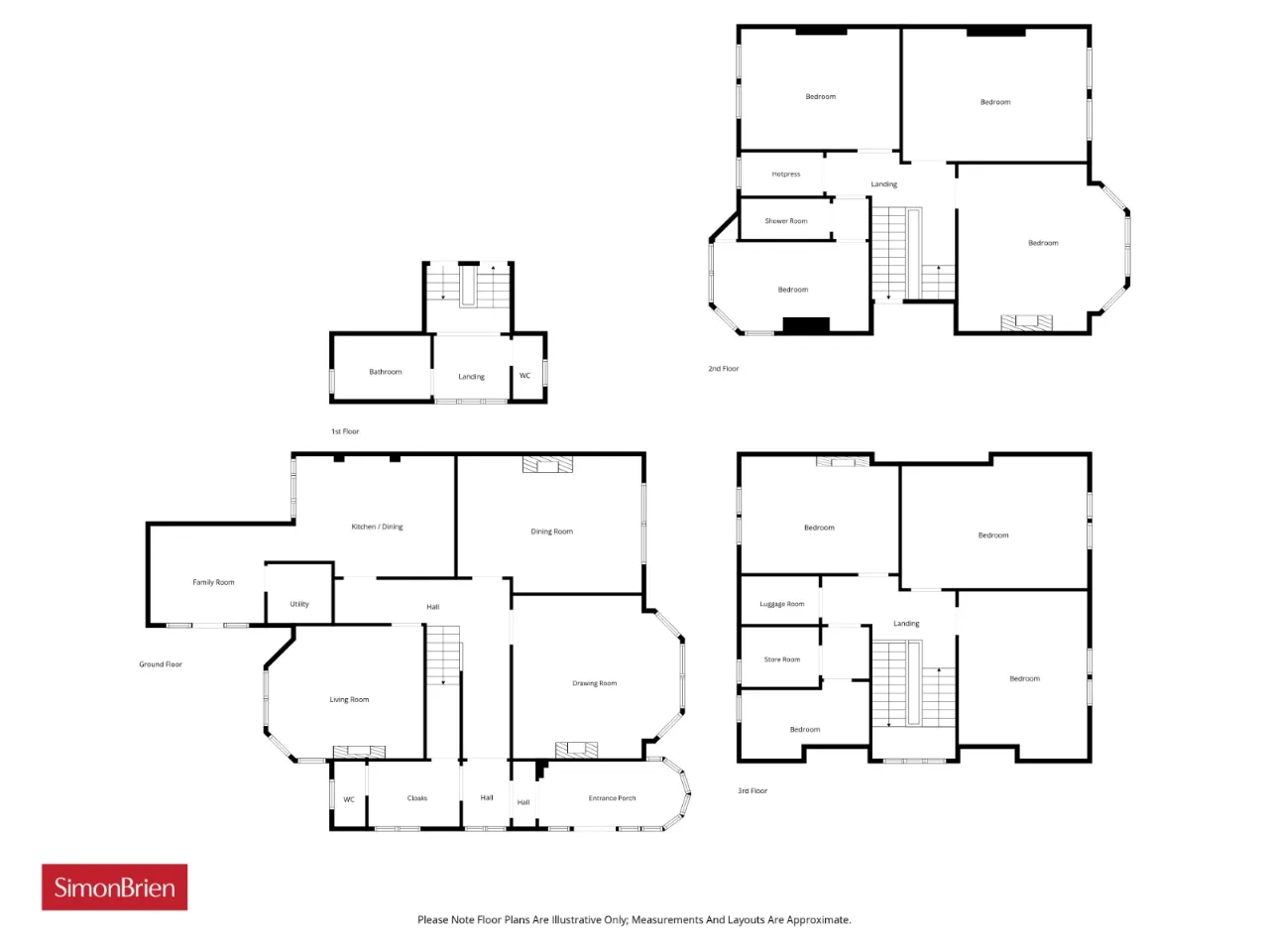
Rooms

ENTRANCE PORCH: Feature bay window, wooden and glazed inner door to Reception Hall
CLOAKROOM: 12'11" x 6'5" (3.94m x 1.96m) Low flush suite, cloaks area, storage cupboard
DRAWING ROOM: 17'10" x 17'8" (5.44m x 5.38m) Into Bay               Solid wooden flooring, cornice ceiling and picture rail, wood burning stove on slate hearth
DINING ROOM: 19'9" x 14'6" (6.02m x 4.42m) Wood block flooring, cornice ceiling and picture rail
LIVING ROOM: 17'0" x 13'9" (5.18m x 4.2m) Solid wooden florring, cornice ceiling and picture rail, wood burning stove on tiled hearth
KITCHEN/DINING: 17'5" x 12'10" (5.3m x 3.9m) Excellent range of units, granite worktops, gas fired Aga, 2 ring gas hob, integrated dishwasher, leading to:
FAMILY ROOM: 12'4" x 10'5" (3.76m x 3.18m) Door to rear
UTILITY ROOM: 7'1" x 5'7" (2.16m x 1.7m) Plumbed for washing machine
FIRST FLOOR RETURN: Feature stained glass window
BATHROOM: White suite comprising panelled bath, vanity unit, corner shower cubicle
SEPARATE WC: Low flush suite
FIRST FLOOR:
BEDROOM ONE: 17'10" x 17'8" (5.44m x 5.38m) Cornice ceiling and picture rail, feature fireplace and hearth, corner shower cubicle, wash hand basin and vanity unit
BEDROOM TWO: 19'8" x 14'6" (6m x 4.42m)
BEDROOM THREE: 17'2" x 12'10" (5.23m x 3.9m)
BEDROOM FOUR: 17'0" x 9'6" (5.18m x 2.9m)
SHOWER ROOM: WC, wash hand basin, double shower tray
SECOND FLOOR:
BEDROOM FIVE: 19'10" x 14'5" (6.05m x 4.4m) Solid wooden floor
BEDROOM SIX: 17'8" x 13'10" (5.38m x 4.22m)
BEDROOM SEVEN: 17'4" x 12'11" (5.28m x 3.94m) Wood effect flooring
LUGGAGE ROOM: 14'0" x 7'1" (4.27m x 2.16m)
STORE ROOM: 8'6" x 6'6" (2.6m x 1.98m) Plumbed for a bathroom
Contact Ben Wilkinson South Belfast +44 28 90668888 Email Enquiry

Location

Show Map
What's Near by?

Click below to see on map

Mortgage Calculator

Monthly Repayments Need Mortgage Advice?

Disclaimer: The following calculations act as a guide only, and are based on a typical repayment mortgage model. Financial decisions should not be made based on these calculations and accuracy is not guaranteed. Always seek professional advice before making any financial decisions.

Share Property

Request More Information

Requesting Info about...
30 Cadogan Park, Belfast, County Antrim, BT9 6HH 30 Cadogan Park, Belfast, County Antrim, BT9 6HH

By registering your interest, you acknowledge our Privacy Policy and Terms & Conditions

Value My Property

Do you have a property to sell?
If you have a property to sell we can arrange for one of our experienced valuers to provide you with a no-obligation valuation.

Please complete the form opposite and a member of our team will get in touch to discuss your requirements.

Financial Services Enquiry

We can help with mortgages and insurance
John Minnis work with independent financial advisers that offer private mortgage advice and insurance options.

If you would like more information about what we can offer please complete the form opposite and a member of our team will get in touch to discuss your requirements.

Arrange a Viewing

Arrange a viewing for...
30 Cadogan Park, Belfast, County Antrim, BT9 6HH 30 Cadogan Park, Belfast, County Antrim, BT9 6HH

Make an Offer

Make an Offer for...
30 Cadogan Park, Belfast, County Antrim, BT9 6HH LBR260074
Loading...