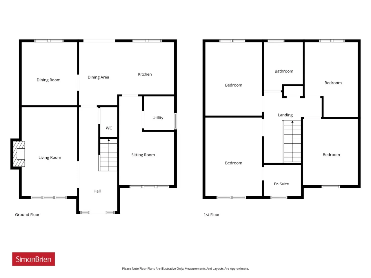
ENTRANCE HALL:
Composite door, tiled
LIVING ROOM: 17'2" x 10'8" (5.23m x 3.24m)
Engineered flooring, multifuel stove, mantle piece
WC:
Low flush WC, sink with mixer taps, ceramic tiled floor
KITCHEN/DINING: 17'10" x 12'6" (5.44m x 3.81m)
Tiled, gas cooker Rangemaster, range of high and low level units, space for fridge, hob and metal splashback, double doors to patio
SNUG/RECEPTION: 16'11" x 10'0" (5.16m x 3.06m)
UTILITY ROOM:
Gas boiler, plumbed for washing machine and dryer
RECEPTION ROOM: 12'0" x 10'8" (3.66m x 3.26m)
FIRST FLOOR LANDING:
Hotpress
MASTER BEDROOM: 14'5" x 10'8" (4.40m x 3.25m)
ENSUITE:
Corner shower unit, low flush WC, sink with mixer taps, fully tiled walls and floor
BEDROOM 2: 13'0" x 10'8" (3.95m x 3.26m)
BATHROOM:
Walk in shower, low flush WC, sink with mixer taps, fully tiled floor and walls
BEDROOM 3: 13'9" x 10'0" (4.20m x 3.06m)
BEDROOM 4: 13'3" x 10'0" (4.05m x 3.05m)
LOFT:
Access via integrated ladder, partially floored
GARDEN:
Dual aspect, patio and lawn, outside tap, electric supply