Javascript is vital for the advanced features in this website such as Property Search. Please enable or upgrade your browser

19 Milecross Manor

Newtownards, County Down, BT23 4ZW

Asking Price £315,000

19 Milecross Manor

Newtownards, County Down, BT23 4ZW

Asking Price £315,000
Status For Sale
Asking Price £315,000
Style Semi-detached
Bedrooms 3
Receptions 2
EPC Rating B83/B83 - Download
Stamp Duty £ / £*
Calculate Stamp Duty
*Higher amount applies when purchasing as buy to let
or as an additional property
Status For Sale
Asking Price £315,000
Style Semi-detached
Bedrooms 3
Receptions 2
EPC Rating B83/B83 - Download
Stamp Duty £ / £*
*Higher amount applies when purchasing as buy to let
or as an additional property

Key Features

Immaculately Presented Three Storey Semi Detached
No Expense Spared on Fixtures and Fittings
Open Plan Kitchen / Living / Dining with Access to Rear Garden
Ground floor WC
Spacious First Floor Lounge with French Doors to Juliete Balcony
Three Well Proportioned Bedrooms - Principal with Stunning Views to Scrabo Tower and Strangford Lough, Vaulted Ceiling and Ensuite Shower Room
Modern Family Bathroom
Integral Garage with Utility Area and Driveway Parking for Two Cars
uPVC Double Glazing and Gas Fired Central Heating
Well-Tended, Enclosed Rear Garden with Paved Patio Area
Large 29 sq m fully floored roof space with light
Enjoying a Quiet Setting with Countryside Views to the Front.
Superb Location Within Walking Distance to Newtownards Bustling Town Centre, local amenities and Kiltonga Nature Reserve

Description

Set within the popular Milecross Manor development in Newtownards, this modern three-storey semi-detached home is tucked away to the rear of the development, enjoying a quiet setting with countryside views to the front.
Finished to a high standard throughout, the property offers three well-proportioned bedrooms across three floors, including a spacious principal suite with ensuite shower room and impressive views towards Scrabo and Strangford Lough.
The bright open-plan kitchen, dining, and living area forms the heart of the home, with patio doors opening onto the enclosed rear garden, ideal for entertaining or relaxing. A separate first-floor lounge provides a flexible second living space.
Further features include an integral garage with utility area and a private driveway offering off-street parking for two cars.
Immaculately presented and ideally located just off the Belfast Road, the property is within walking distance of Newtownards Town Centre, close to schools, amenities, and excellent transport links to Belfast and Bangor, with scenic walks at Scrabo Tower and Kiltonga Nature Reserve nearby.

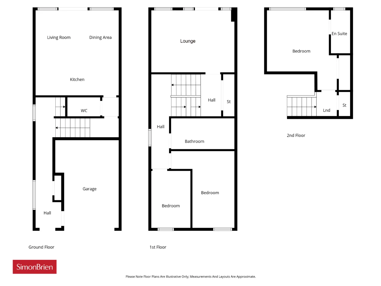
Rooms

GROUND FLOOR: uPVC double glazed front door.
RECEPTION HALL: Ceramic tiled floor, alarm control panel, built in storage cupbard with gas fired boiler, additional storage cupboard, access to Garage.
GARAGE: 16'2" x 9'9" (4.93m x 2.97m) Roller door, light and power, range of high and low level units, laminate work surfaces, single drainer stainless steel sink unit with chrome mixer taps, plumbed for washing machine, space for tumble dryer.
LOWER LEVEL:
WC: Wash hand basin with chrome mixer taps, vanity unit, partly tiled walls, low flush WC, ceramic tiled floor, extractor fan.
KITCHEN/LIVING/DINING: 16'0" x 15'6" (4.88m x 4.72m) Excellent range of high and low level units, granite worktop, upstands and splashback, island unit with 1 1/4 bowl sink unit with chrome mixer taps, inset drainer, integrated fridge and freezer, integrated washing machine, large Indesit 5 ring gas hob, stainless steel extractor fan, integrated electric double oven, ceramic tiled floor, low voltage spotlights, uPVC double glazed front door to patio and garden.
UPPER LEVEL:
LOUNGE: 15'6" x 12'0" (4.72m x 3.66m) Herringbone engineered wood flooring, uPVC double glazed French doors to Juliet balcony, low voltage spotlights, feature wall radiator.
FIRST FLOOR:
BATHROOM: Contemporary white suite comprising: Tiled panelled bath with chrome mixer taps and telephone hand shower, wash hand basin with chrome mixer taps in vanity unit, fully tiled shower cubicle with chrome shower unit, chrome heated towel radiator, ceramic tiled floor, electric skylight, extractor fan.
BEDROOM 2: 13'9" x 7'6" (4.2m x 2.29m) Outlook to countryside. Access to large 29 sq m fully floored roof space with light.
BEDROOM 3: 10'4" x 7'6" (3.15m x 2.29m) Outlook to countryside.
BEDROOM 1: 12'9" x 11'6" (3.89m x 3.5m) Double built in wardrobe, vaulted ceiling, views to Scrabo Tower and Strangford Lough, electric roller blinds.
ENSUITE: Contemporary white suite comprising: Low flush WC, wash hand basin with chrome mixer taps in vanity unit, double shower cubicle with chrome shower unit, extractor fan, chrome heated towel radiator, ceramic tiled floor, partly tiled walls.
OUTSIDE: Well maintainted and enclosed rear garden in lawn bordered by fencing. Paved patio area, outside light. Off street private parking for 2 cars to front.
Contact Jennie Sharratt Holywood 028 90428989 Email Enquiry

Location

Show Map
What's Near by?

Click below to see on map

Mortgage Calculator

Monthly Repayments Need Mortgage Advice?

Disclaimer: The following calculations act as a guide only, and are based on a typical repayment mortgage model. Financial decisions should not be made based on these calculations and accuracy is not guaranteed. Always seek professional advice before making any financial decisions.

Request More Information

Requesting Info about...
19 Milecross Manor, Newtownards, County Down, BT23 4ZW 19 Milecross Manor, Newtownards, County Down, BT23 4ZW

By registering your interest, you acknowledge our Privacy Policy and Terms & Conditions

Value My Property

Do you have a property to sell?
If you have a property to sell we can arrange for one of our experienced valuers to provide you with a no-obligation valuation.

Please complete the form opposite and a member of our team will get in touch to discuss your requirements.

Financial Services Enquiry

We can help with mortgages and insurance
John Minnis work with independent financial advisers that offer private mortgage advice and insurance options.

If you would like more information about what we can offer please complete the form opposite and a member of our team will get in touch to discuss your requirements.

Arrange a Viewing

Arrange a viewing for...
19 Milecross Manor, Newtownards, County Down, BT23 4ZW 19 Milecross Manor, Newtownards, County Down, BT23 4ZW

Make an Offer

Make an Offer for...
19 Milecross Manor, Newtownards, County Down, BT23 4ZW HLW260039
Loading...