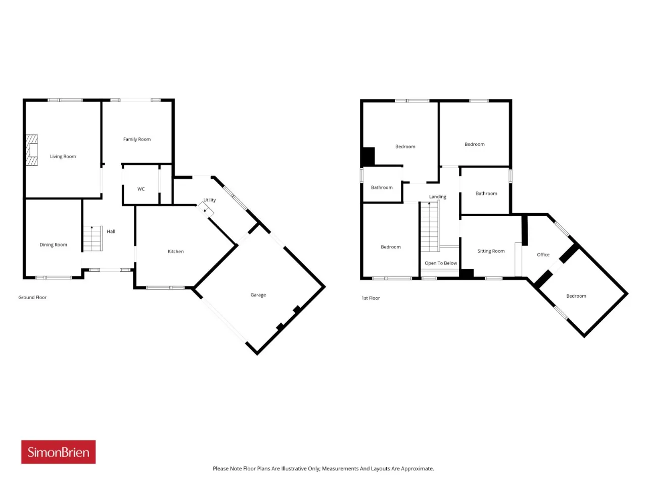
RECEPTION HALL:
uPVC front door, solid wooden flooring
CLOAKROOM: 6'5" x 5'9" (1.96m x 1.75m)
Fully tiled contemporary suite with vanity unit and WC, airing cupboard with Worcester gas boiler
LIVING ROOM: 16'8" x 12'8" (5.08m x 3.86m)
Solid wooden flooring, raised gas fire
FAMILY ROOM: 11'6" x 10'9" (3.5m x 3.28m)
Solid wooden flooring, uPVC double doors to rear patio and garden
DINING ROOM: 12'3" x 9'5" (3.73m x 2.87m)
KITCHEN: 12'10" x 12'10" (3.9m x 3.9m)
Contemproary fitted kitchen with quartz work tops, integrated double oven, induction hob with extractor above, sink unit with Quooker tap, herring-bone tiled floor and plumbed for US style fridge-freezer. Pull out larder. All Bosch appliances including integrated dishwasher and induction hob.
UTILITY ROOM: 12'0" x 5'6" (3.66m x 1.68m)
Range of units, work surfaces, sink unit, plumbed for washing machine, matching tiled floor, part tiled walls, access to:
INTEGRAL GARAGE: 17'8" x 15'5" (5.38m x 4.7m)
Electric roller door, automatic lighting
FIRST FLOOR LANDING:
BEDROOM 1: 13'0" x 12'7" (3.96m x 3.84m)
ENSUITE:
Fully tiled white suite with WC, corner shower cubicle with electric shower, vanity unit, heated towel rail, spotlights and extractor fan
BEDROOM 2: 11'10" x 10'11" (3.6m x 3.33m)
Open to:
STUDY AREA: 9'6" x 4'11" (2.9m x 1.5m)
Leading to:
TV SNUG/BEDROOM 5: 10'11" x 9'1" (3.33m x 2.77m)
BEDROOM 3: 12'4" x 9'5" (3.76m x 2.87m)
BEDROOM 4: 11'6" x 10'4" (3.5m x 3.15m)
Wood effect flooring. Folding wooden ladder to:
FLOORED ROOFSPACE:
Partially floored, light and power with excellent head-height. Currently used as a golf-simulator room.
BATHROOM: 8'1" x 7'1" (2.46m x 2.16m)
Luxury fully tiled suite comprising freestanding bath with mixer taps and telephone hand shower, corner shower cubicle, vanity unit, heated towel rail and extractor fan
OUTSIDE:
Generous driveway parking in brick paviors with ample parking. Well-maintained front and rear gardens in lawns with paved walkway around and boundary fencing to the rear.
INTEGRAL DOUBLE GARAGE: 17'8" x 15'5" (5.38m x 4.7m)
Electric roller door, automatic lighting