Javascript is vital for the advanced features in this website such as Property Search. Please enable or upgrade your browser

16 Castlehill Wood

Belfast, County Antrim, BT4 3PJ

Offers Over £575,000

16 Castlehill Wood

Belfast, County Antrim, BT4 3PJ

Offers Over £575,000
Status For Sale
Offers Over £575,000
Style Detached
Bedrooms 4
Receptions 2
EPC Rating B84/B84 - Download
Stamp Duty £ / £*
Calculate Stamp Duty
*Higher amount applies when purchasing as buy to let
or as an additional property
Status For Sale
Offers Over £575,000
Style Detached
Bedrooms 4
Receptions 2
EPC Rating B84/B84 - Download
Stamp Duty £ / £*
*Higher amount applies when purchasing as buy to let
or as an additional property

Key Features

Luxury Detached Family Home, Located Within The Prestigious Castlehill Wood Development
Recently Built Property Finished To An Exceptional Standard Throughout
Positioned Adjacent To The Stormont Estate With Access To Woodland Walks
Spacious Living Room
High-Specification Modern Kitchen With Integrated Appliances, Open To Dining Area
French Doors Leading To A Generous Enclosed Rear Garden
Separate Utility Room & Downstairs WC
Four Generous Double Bedrooms
Principal Bedroom Suite With Walk-In Dressing Room And Shower En-Suite
Stylish Family Bathroom With Separate Bath And Rainfall Shower
Additional Shower Room On Upper Floor
Gas Fired Central Heating & uPVC Double Glazing Throughout
Private Driveway Providing Off-Street Parking
Excellent Transport Links Including Glider And Easy Access To Belfast City Centre
Close To Ballyhackamore, Dundonald And Eastpoint Entertainment Village
Early Viewing Highly Recommended

Description

Interested in this property? Sign up for MY Simon Brien to arrange your viewing, see current offers or make your own offer. Register now at SimonBrien.com.

This exceptional five bedroom, detached home is set within the highly sought-after Castlehill Wood development, a recently completed enclave tucked just off the Stormont Estate. Combining contemporary design with generous proportions, the property is finished to an exacting standard throughout and offers superb family living in one of East Belfast’s most desirable locations.

The accommodation is both bright and spacious. The ground floor is centred around an impressive entrance hallway, leading to the living room, guest WC and a stunning open-plan kitchen / dining area. The kitchen is sleek and modern, fully fitted with integrated appliances, while a separate utility area discreetly houses the washing machine and dryer. French doors from the dining area open directly onto a generous enclosed rear garden, ideal for entertaining and family use.

On the first floor, the principal bedroom suite is complete with a walk-in dressing room and stylish shower en-suite. Two further well-proportioned double bedrooms are located on this level, either of which would lend themselves perfectly to a home office or study if required. The main family bathroom is finished to a high standard, featuring a separate bath and a contemporary rainfall shower.

The second floor accommodates two additional large double bedrooms, and a further full bathroom with corner shower completes this level.

Externally, the property benefits from a private driveway providing off-street parking and a well-maintained rear garden laid in lawn with patio area, ideal for outdoor entertaining

Castlehill Wood is ideally positioned beside the Stormont Estate, offering immediate access to woodland walks, parkland and outdoor leisure. The property is within easy reach of Ballyhackamore, Dundonald and Eastpoint Entertainment Village, with an excellent selection of cafés, restaurants and shops nearby. The area is also well served by leading primary and post-primary schools.

Early viewing is strongly recommended to avoid disappointment.

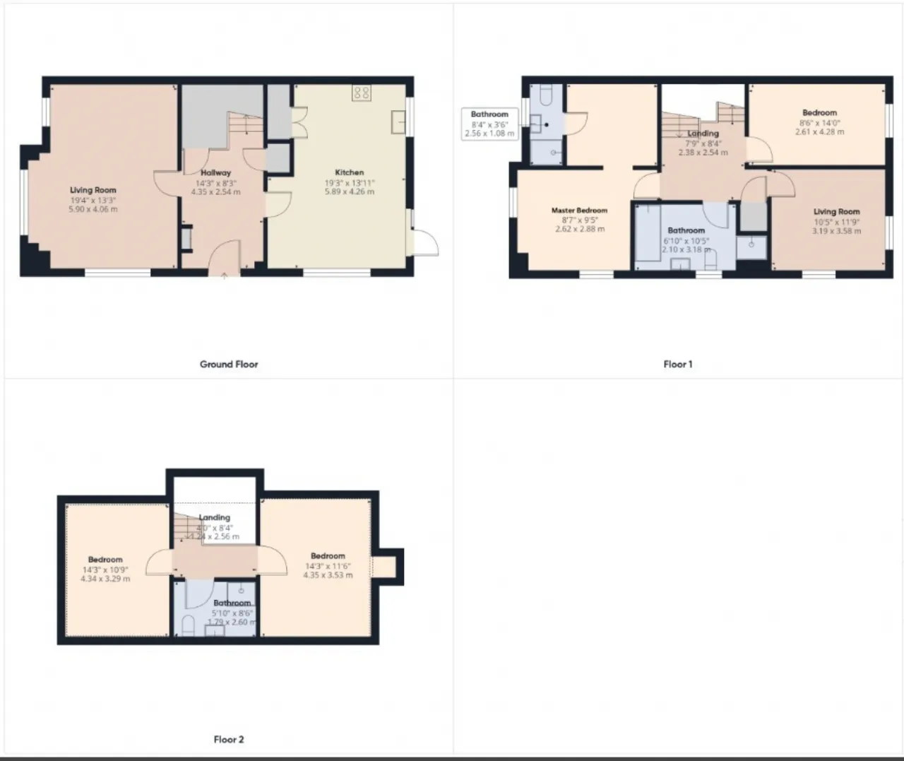
Rooms

ENTRANCE: Composite front door with top light, leading through to spacious reception hall.
SPACIOUS RECEPTION HALL: Tiled flooring, storage cupboard, access to downstairs WC.
DOWNSTAIRS WC: White suite comprising of low flush WC, vanity unit with wash hand basin and mixer tap, tiled flooring, extractor fan, vertical heated towel rail.
LIVING ROOM: 19'6" x 15'9" (5.94m x 4.8m) Laminate wood effect flooring, dual aspect to front and side.
KITCHEN DINING: 19'9" x 14'6" (6.02m x 4.42m) Fantastic range of high and low level units, granite work surfaces with stainless steel sink unit and drainer 1.5 tub with mixer tap, integrated oven, four ring gas hob, extractor fan, granite kitchen splash back, integrated fridge freezer, integrated dishwasher, tiled flooring, recessed spotlighting, open to dining area with access door through to rear garden.
STORAGE CUPBOARD: Plumbed for washing machine, space for tumble dryer.
STAIRS & LANDING TO FIRST FLOOR: Storage cupboard with hot water tank, pressurized water system.
PRINCIPLE BEDROOM: 14'5" x 10'9" (4.4m x 3.28m) Dual aspect to front and side, open to walk-in dressing room with recessed spotlighting, following through to ensuite shower room.
ENSUITE SHOWER ROOM: White suite comprising of low flush WC, vanity unit with wash hand basin and mixer tap, thermostatically controlled shower with rainfall shower head and handset, partly tiled walls, tiled flooring, recessed spotlighting, vertical heated towel rail.
BEDROOM 2: 14'6" x 8'6" (4.42m x 2.6m) Outlook to side.
BEDROOM 3: 12'1" x 10'6" (3.68m x 3.2m) Dual aspect to front and side.
BATHROOM: White suite comprising of low flush WC, circular wash hand basin with mixer tap, storage below, stand alone bath with mixer tap and handset, walk-in thermostatically controlled shower with rainfall shower head and handset, recessed shelving, partly tiled walls, tiled flooring, recessed spotlighting, extractor fan.
STAIRS & LANDING TO SECOND FLOOR:
BEDROOM 4: 14'4" x 10'9" (4.37m x 3.28m) Velux window.
BEDROOM 5: 14'6" x 14'4" (4.42m x 4.37m) Velux window.
SHOWER ROOM: White suite comprising of low flush WC, wash hand basin with mixer tap, storage below, walk-in mirror sport shower unit, partly tiled walls, tiled flooring, recessed spotlighting, extractor fan.
OUTSIDE: Driveway for off street car parking. Side garden laid in lawn with paved patio area, ideal for outdoor entertaining.
Contact Laurie Caruth East Belfast +44 28 90595555 Email Enquiry

Location

Show Map
What's Near by?

Click below to see on map

Mortgage Calculator

Monthly Repayments Need Mortgage Advice?

Disclaimer: The following calculations act as a guide only, and are based on a typical repayment mortgage model. Financial decisions should not be made based on these calculations and accuracy is not guaranteed. Always seek professional advice before making any financial decisions.

Request More Information

Requesting Info about...
16 Castlehill Wood, Belfast, County Antrim, BT4 3PJ 16 Castlehill Wood, Belfast, County Antrim, BT4 3PJ

By registering your interest, you acknowledge our Privacy Policy and Terms & Conditions

Value My Property

Do you have a property to sell?
If you have a property to sell we can arrange for one of our experienced valuers to provide you with a no-obligation valuation.

Please complete the form opposite and a member of our team will get in touch to discuss your requirements.

Financial Services Enquiry

We can help with mortgages and insurance
John Minnis work with independent financial advisers that offer private mortgage advice and insurance options.

If you would like more information about what we can offer please complete the form opposite and a member of our team will get in touch to discuss your requirements.

Arrange a Viewing

Arrange a viewing for...
16 Castlehill Wood, Belfast, County Antrim, BT4 3PJ 16 Castlehill Wood, Belfast, County Antrim, BT4 3PJ

Make an Offer

Make an Offer for...
16 Castlehill Wood, Belfast, County Antrim, BT4 3PJ UNT250554
Loading...