Javascript is vital for the advanced features in this website such as Property Search. Please enable or upgrade your browser

Killeen Bridge Hotel Development

Dublin Road, Killeen Bridge, BT35 8RL

Offers Over £680,000

Killeen Bridge Hotel Development

Dublin Road, Killeen Bridge, BT35 8RL

Offers Over £680,000
Status For Sale
Offers Over £680,000
EPC Rating 0/0
Stamp Duty £ / £*
Calculate Stamp Duty
*Higher amount applies when purchasing as buy to let
or as an additional property
Status For Sale
Offers Over £680,000
EPC Rating 0/0 - Download
Stamp Duty £ / £*
*Higher amount applies when purchasing as buy to let
or as an additional property

Key Features

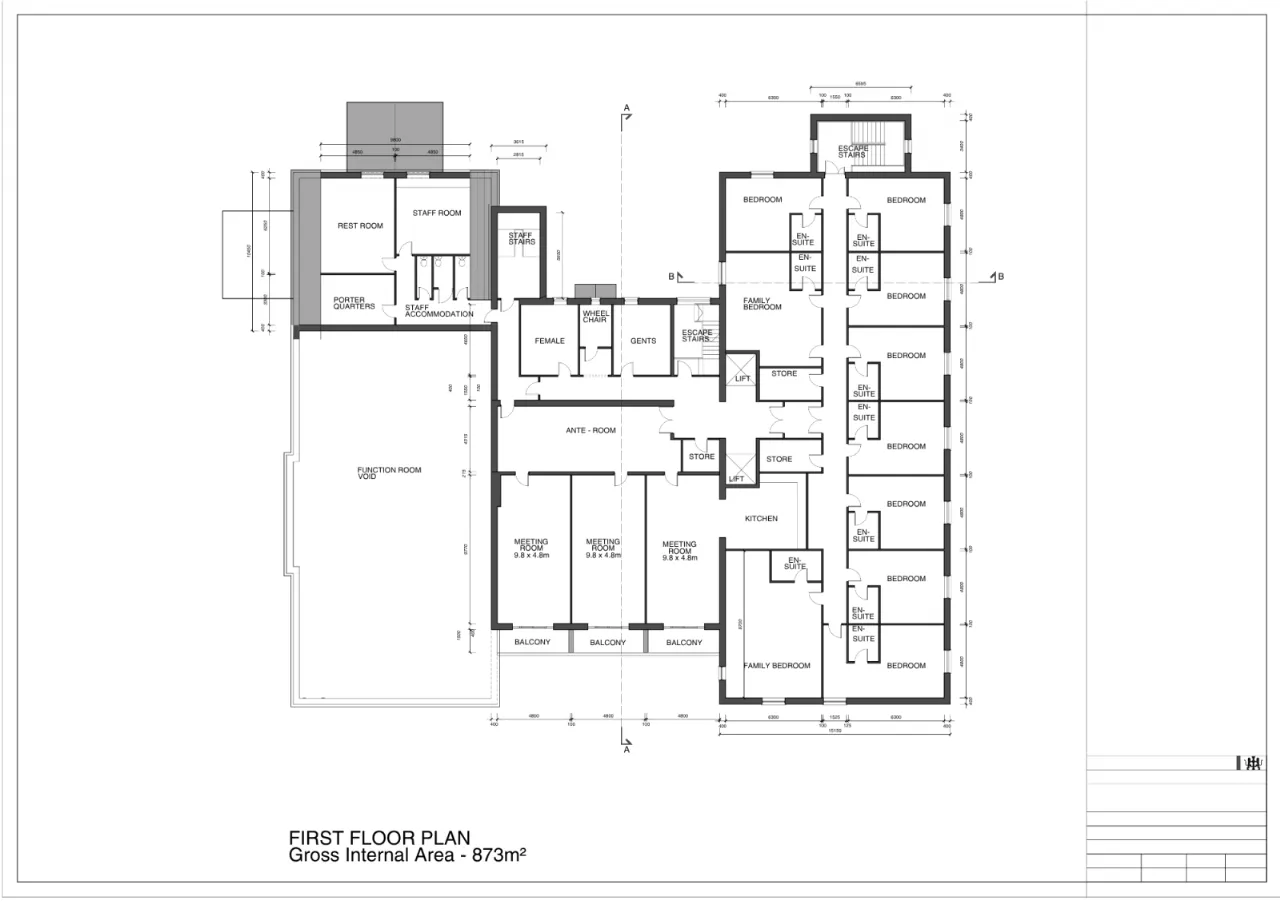
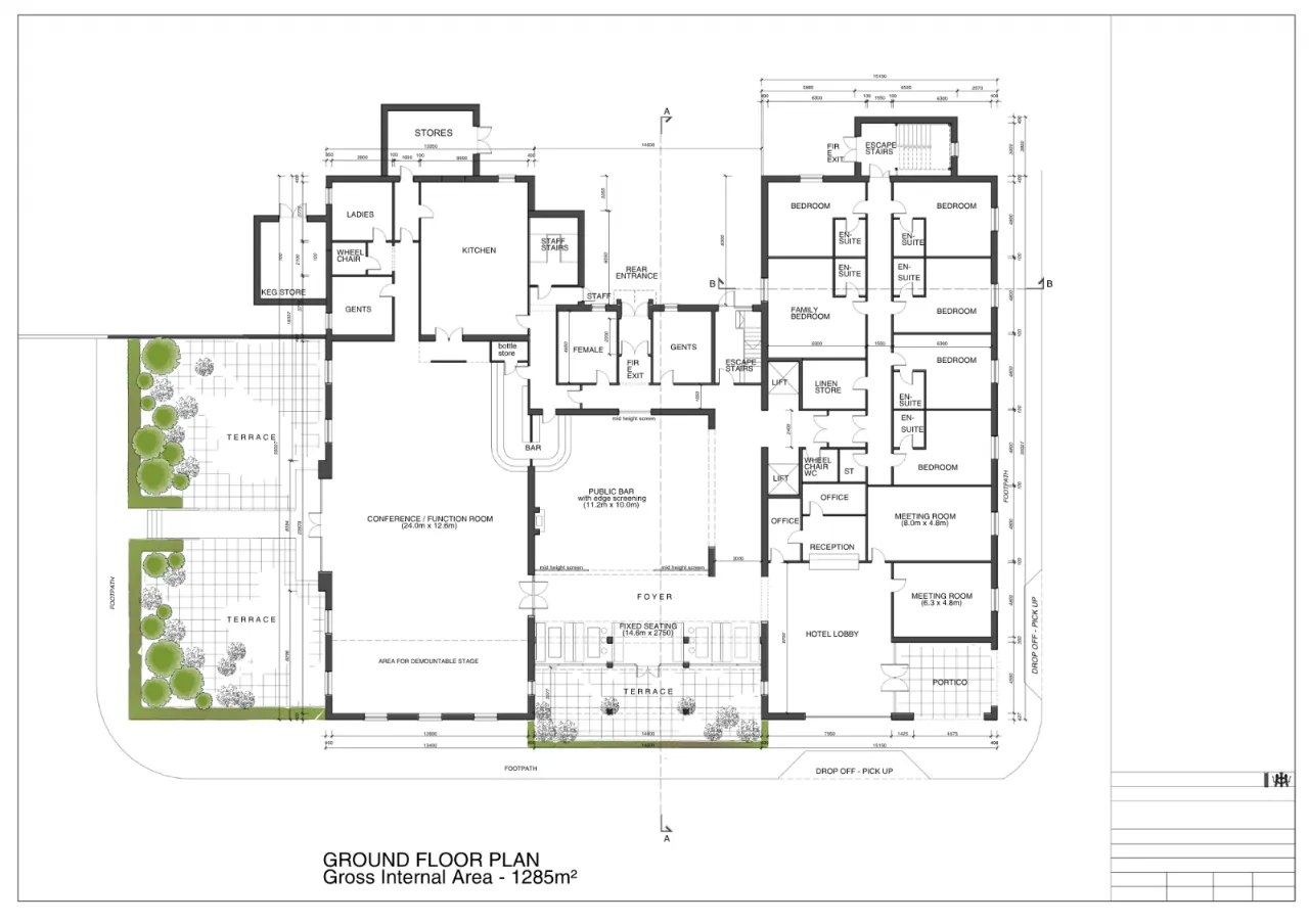
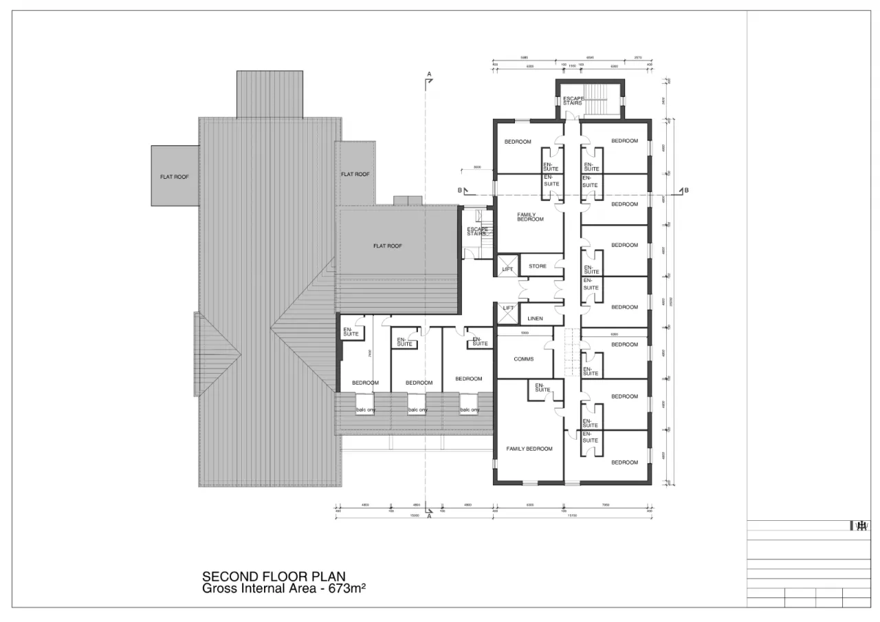
Planning Status: Full approval for 29-bedroom hotel with bar, restaurant, function suite & meeting rooms
Site Area: c. 7.9 acres (3.19 ha)
Planning Reference: LA07/2017/1315/F
Gross Internal Area (Approved): c. 30,690 sq ft (2,851 m²)
Location: Dublin Road, Killeen Bridge, Newry BT35 8RL – 0.6 miles to A1 Dual Carriageway – 3 miles to Newry City Centre – 1.3 miles to Irish Border / Dundalk
Tourism Zone: Ring of Gullion AONB
Mourne–Carlingford Tourism Corridor
Key Infrastructure: Southern Relief Road (£110 m DfI Project) Narrow Water Bridge (Opening 2027)
Grant Eligibility: NMDDC Hotel Development Grant Scheme – up to £300,000 (30 % of eligible build costs)

Description

A LANDMARK HOTEL OPPORTUNITY ON THE BELFAST - DUBLIN CORRIDOR

Killeen Bridge Hotel represents a unique chance to acquire a fully consented development site positioned at the midpoint of the island’s most important economic and tourism axis. Set within c. 7.9 acres, the property benefits from full planning permission (Ref LA07/2017/1315/F) for a 29-bedroom, three-storey boutique hotel incorporating bar, restaurant, conference and function suite, meeting rooms and landscaped terraces. The hotel site extends to 1.6 acres, with the remaining agricultural lands extending to 6.3 acres.

Strategically located 0.6 miles from the A1 dual carriageway and 3 miles south of Newry City, the site enjoys direct access to both Northern Ireland and the Republic of Ireland markets. The setting—framed by the Ring of Gullion Area of Outstanding Natural Beauty—combines rural tranquility with exceptional connectivity, creating a destination that is equally suited to leisure, events, and corporate guests.

*FULL DETAILS AVAILABLE VIA THE ATTACHED BROCHURE*

Rooms

EXECUTIVE SNAPSHOT: Site Area: c. 7.9 acres (3.19 ha) Planning Reference: LA07/2017/1315/F | Planning Status: Full approval for 29-bedroom hotel with bar, restaurant, function suite & meeting rooms Gross Internal Area (Approved): c. 30,690 sq ft (2,851 m²) | Location: Dublin Road, Killeen Bridge, Newry BT35 8RL – 0.6 miles to A1 Dual Carriageway – 3 miles to Newry City Centre – 1.3 miles to Irish Border / Dundalk | Tourism Zone: Ring of Gullion AONB | Mourne–Carlingford Tourism Corridor | Key Infrastructure: Southern Relief Road (£110 m DfI Project) Narrow Water Bridge (Opening 2027) | Grant Eligibility: NMDDC Hotel Development Grant Scheme – up to £300,000 (30 % of eligible build costs) | Tenure: Freehold | Guide Price: Offers Over £680,000 |
THE OPPORTUNITY: Proven demand for high-quality accommodation across the Mourne–Carlingford region. Tourism NI recorded 1.5 million overnight visitors to the district in 2024, reflecting year-on-year growth | Infrastructure momentum: the £110 million Southern Relief Road and the new Narrow Water Bridge will strengthen transport links and open a new coastal tourism circuit | Public-sector support: eligible for the Newry Mourne & Down District Council Hotel Development Grant Scheme 2025 – offering up to £300,000 or 30 % of eligible build costs | Flexible delivery: boutique hotel, wellness retreat, wedding venue, or mixed hospitality concept
THE INVESTMENT PROPOSITION: A fully consented, grant-eligible site at the intersection of two capital cities, surrounded by world-class scenery and a fast-growing visitor economy. Few development opportunities in Northern Ireland combine such planning certainty, location strength, and tourism upside within a single asset.
LOCATION & CONNECTIVITY: Strategically located midway between Belfast and Dublin, Killeen Bridge offers direct access to the island’s most important transport, trade and tourism corridor | Just 0.6 miles from the A1 dual carriageway, the site connects to a catchment of over 2.5 million people within a 90-minute drive | The location provides the rare combination of high visibility and natural serenity — set among the rolling countryside of the Ring of Gullion yet minutes from major arterial routes, ports and airports | For developers and operators, the A1 corridor represents one of the most robust hotel and hospitality sub-markets in Ireland: high year-round traffic, cross-border tourism, and strong mid-week corporate demand from both capital cities.
INFRASTRUCTURE MOMENTUM: The property sits at the centre of transformative regional investment: Southern Relief Road (£110 million DfI Project): Links the A1 Dublin Road to the A2 Warrenpoint dual carriageway, just 0.5 miles away, providing a direct southern bypass of Newry City Narrow Water Bridge (Opening 2027) | This landmark connection will integrate the Mourne–Carlingford–Gullion tourism cluster into a single visitor circuit, enhancing hotel demand throughout the region | Together, these projects will redefine accessibility to Newry and its hinterland — positioning Killeen Bridge at the gateway between Northern Ireland and the Republic of Ireland |
APPROVED DESIGN - READY TO DELIVER: Full planning permission (Ref: LA07/2017/1315/F) was granted in May 2022 for the development of a 29-bedroom, three-storey hotel with bar, restaurant, function suite, meeting rooms and landscaped terraces. The design blends traditional local materials with contemporary proportions, creating a building that sits naturally within its countryside setting. Key design features include: A granite-clad entrance gable with full-height glazing and a recessed canopy | White rendered elevations with raised strap detailing | Slate roof with dormer windows providing symmetry and character | Landscaped front terrace for dining and events, overlooking the Ring of Gullion | Dedicated parking and service areas to the rear as per McIlwaine Landscape Plan | The approved Gross Internal Area (GIA) is approximately 30,690 sq ft (2,851 m²) on a total site of c. 7.9 acres
TERMS OF SALE: The property is being offered For Sale by Private Treaty. However, the vendor reserves the right to conclude the sale via auction or “Best and Final” bids at a date and time to be confirmed. The criteria required from interested parties in placing an offer must include: - Confirmation of name and address of proposed purchaser - Confirmation of offer level - Proof of funds from Bank to confirm that adequate funds are available to complete the purchase at offer level - Timescale to complete the purchase post acceptance of offer - Confirmation of solicitor who will represent purchaser 10% deposit of agreed purchase price shall be payable upon agreement of sale - Further information pack to be provided at this point
FURTHER INFORMATION: Inspection of the site is strictly by appointment: Garrett O'Hare, Managing Director T: 028 300 50633 E: garrett@simonbrienbradley.com or Stephen Gray, Branch Manager T: 028 300 50633 E: stephen@simonbrienbradley.com
Contact Garrett O'Hare Newry 028 3005 0633 Email Enquiry

Location

Show Map
What's Near by?

Click below to see on map

Mortgage Calculator

Monthly Repayments Need Mortgage Advice?

Disclaimer: The following calculations act as a guide only, and are based on a typical repayment mortgage model. Financial decisions should not be made based on these calculations and accuracy is not guaranteed. Always seek professional advice before making any financial decisions.

Request More Information

Requesting Info about...
Killeen Bridge Hotel Development , Dublin Road, Killeen Bridge, BT35 8RL Killeen Bridge Hotel Development , Dublin Road, Killeen Bridge, BT35 8RL

By registering your interest, you acknowledge our Privacy Policy and Terms & Conditions

Value My Property

Do you have a property to sell?
If you have a property to sell we can arrange for one of our experienced valuers to provide you with a no-obligation valuation.

Please complete the form opposite and a member of our team will get in touch to discuss your requirements.

Financial Services Enquiry

We can help with mortgages and insurance
John Minnis work with independent financial advisers that offer private mortgage advice and insurance options.

If you would like more information about what we can offer please complete the form opposite and a member of our team will get in touch to discuss your requirements.

Arrange a Viewing

Arrange a viewing for...
Killeen Bridge Hotel Development , Dublin Road, Killeen Bridge, BT35 8RL Killeen Bridge Hotel Development , Dublin Road, Killeen Bridge, BT35 8RL

Make an Offer

Make an Offer for...
Killeen Bridge Hotel Development , Dublin Road, Killeen Bridge, BT35 8RL NEW250135
Loading...